Appartamento in Vendita a Chiaverano, 3'700'000€, 2100 m², con Box

Locali: 10+
Bagni: 26
Camere: 24
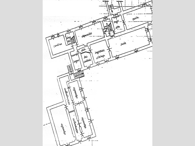
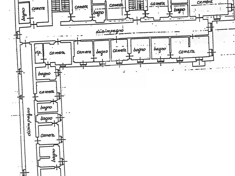
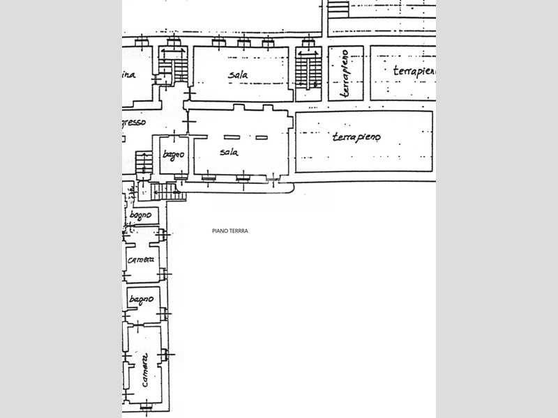
Castello San Giuseppe – Dimora storica del ‘600 con parco e piscina panoramica, Ivrea (TO) Nel cuore del Canavese, a soli 3 km dal centro di Ivrea, proponiamo in vendita il castello di San Giuseppe, prestigiosa dimora storica del XVII secolo, originariamente convento e oggi elegante struttura ricettiva, circondata da un parco privato di circa 9 ettari. La proprietà domina la sommità di una collina, a circa 410 m s.l.m., nel cuore dell’Anfiteatro Morenico, con affacci spettacolari su laghi, montagne e paesaggi boschivi. La posizione è particolarmente strategica rispetto alle principali città del Nord-Ovest: Torino (circa 40 km), Aosta (60 km), Biella (15 km) e Milano (95 km). Il compendio immobiliare è costituito da un edificio storico di circa 2.100 mq coperti, distribuiti su quattro livelli, oltre a numerosi spazi esterni attrezzati, giardini terrazzati e piscina panoramica. Nel corso degli anni l’immobile è stato oggetto di interventi di restauro conservativo, eseguiti nel rispetto della natura architettonica originaria, ed è attualmente adibito ad albergo/bed & breakfast. Pur presentandosi nel complesso in buone condizioni, la proprietà necessita di alcuni interventi di ristrutturazione e aggiornamento, che consentiranno al futuro acquirente di valorizzarne ulteriormente il potenziale. Spazi interni 24 camere, tutte con servizi privati, distribuite tra primo e secondo piano, molte con pavimenti in cotto antico o rovere e corridoi voltati a botte. Ampia zona reception con salotto di accoglienza, sala colazioni, salotto bar e locali di servizio al piano terra. Sale ristorante e salette dedicate, ideali per pranzi, cene ed eventi riservati. Sala riunioni con accesso indipendente, volta affrescata, camino e servizi, perfetta per meeting e incontri privati. Veranda/giardino d’inverno vetrato e riscaldato, direttamente collegato alla sala ristorante, fruibile tutto l’anno. Spazi esterni Piscina panoramica a sfioro, articolata su due vasche sovrapposte con effetto cascata, zona idromassaggio, area solarium, bar esterno e gazebo. Giardini pensili interni ed esterni, piantumati con palme, magnolie secolari, ulivi e altre essenze mediterranee, oltre ad alberi d’alto fusto e antiche mura di cinta. Torre campanaria seicentesca e suggestivi scorci sulle corti e sui terrazzamenti. Ampi parcheggi interni ed esterni per ospiti e personale Strada privata di accesso di circa 800 m attraverso il bosco, con prati terrazzati e spazio potenzialmente idoneo alla realizzazione di un eliporto privato. L’intero compendio è servito da rete fognaria privata (con allaccio alla rete pubblica), collegamento all’acquedotto e fornitura elettrica potenziata (circa 35 kW), caratteristiche che conferiscono grande funzionalità alla gestione di attività ricettive, eventi o iniziative culturali. Soluzione ideale per chi ricerca una dimora storica di grande fascino, da personalizzare e valorizzare, perfetta come relais di charme, boutique hotel o location esclusiva per matrimoni ed eventi.

Condizioni economiche

Contratto: Vendita
Prezzo: 3'700'000€
Arredato: Non arredato
Libero: Si

Informazioni principali

Tipologia: Appartamento
Città: Chiaverano
Superficie: 2100 m²
N° locali: 10+
N° bagni: 26
N° Camere: 24
Box: Si
Cucina: Si
Giardino: Privato
Esposizione: Sud-Ovest

Efficenza energetica

Classe energetica: F
Condizioni stabile: Buono
Riscaldamento: Autonomo

Dati inserzione

ID Offrocasa.com: 10919191
Data inserimento: 19/11/2025
Rif. Agenzia: CBI135-2937-2641
Rif. Agenzia CBI135-2937-2641

Coldwell Banker Immobiliare Morabito

Corso Sempione, 44 - Milano
+(39) 3492795950
Richiedi Info dal form:
Accetto l'Informativa Privacy


Condividi

Coldwell Banker Immobiliare Morabito

Corso Sempione, 44 - Milano

Appartamento in Vendita a Chiaverano, 3'700'000€, 2100 m², con Box

Chiama
Contatta