Villa in Vendita a Grazzano Badoglio, 3'980'000€, 2700 m²

Locali: 10+
Bagni: 12
Camere: 15
Piano: Su due livelli
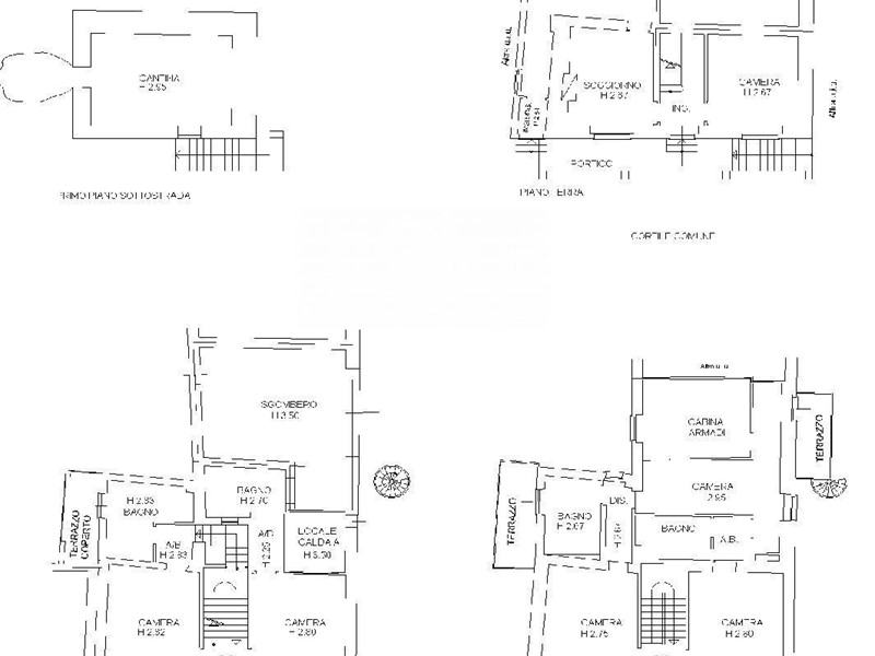
Villa con azienda vitivinicola a Grazzano Badoglio (AT) – Monferrato Nel cuore del Monferrato Astigiano, a Grazzano Badoglio, proponiamo un articolato compendio immobiliare in posizione panoramica, circondato da vigneti e noccioleti. La proprietà, storica e accuratamente mantenuta, integra residenza padronale, attività ricettiva su due fabbricati, cantina con botti e reparti di stoccaggio, oltre a capannoni e locali tecnici: una soluzione ideale per chi desidera coniugare ospitalità di charme ed impresa vitivinicola con produzione media di circa 80.000 bottiglie/anno. Composizione interna della struttura Varcato il cancello, la proprietà si articola in distinti corpi funzionali, concepiti per coniugare residenza di rappresentanza, ospitalità e attività produttiva: Corpo A – Residenza padronale con B&B (2 livelli): nel primo fabbricato si trovano la residenza padronale attualmente abitata dai proprietari e, su due piani, un’area adibita a B&B con camere e servizi. Corpo B – Struttura ricettiva indipendente (2 livelli): fabbricato dedicato al B&B con camere, bagni e spazi comuni; soluzione ideale per gestire gruppi o flussi separati, preservando la privacy della parte padronale. Cantina e reparti tecnici: locali di vinificazione, botti per affinamento, magazzini e area di stoccaggio delle bottiglie. Spazi di servizio: capannone agricolo per mezzi e materiali, locale attrezzi (trattori e piccola meccanizzazione) e depositi. Esterni, terreni e pertinenze La corte interna e i terrazzamenti ospitano una piscina con aree prendisole e un giardino ideale per degustazioni ed eventi. I terreni accorpati superano i 20 ettari complessivi, così distribuiti: ca. 11 ha di vigneto (Barbera d’Asti DOCG, Grignolino d’Asti DOC, Chardonnay Piemonte DOC – marchi registrati); ca. 4 ha di noccioleto; ~100 piante di olivo; ca. 4,5 ha tra seminativi e boschi. Completano la proprietà: box doppio (circa 40 m²), posti auto scoperti (4), balconi/terrazze con vista sulle colline e sulle Alpi nelle giornate terse. L’assetto planimetrico, con tutti i corpi funzionali contigui ai terreni, consente una gestione efficiente dell’azienda e un facile passaggio tra attività produttiva e ricettiva. Distanze e collegamenti La location garantisce privacy e, al contempo, ottimi collegamenti stradali: Moncalvo ~ 7–10 km Asti ~ 25–30 km Casale Monferrato ~ 25–30 km Autostrada A21 (TO–PC–BS) – accessi comodi da Asti Est/Ovest (circa 30–35 min); Torino ~ 60–70 km (~1 h in auto) e Aeroporto di Torino–Caselle ~ 90 km; Milano ~ 110–130 km (in funzione del percorso A21/A7).

Condizioni economiche

Contratto: Vendita
Prezzo: 3'980'000€
Arredato: Non arredato
Libero: Si

Informazioni principali

Tipologia: Villa
Città: Grazzano Badoglio
Superficie: 2700 m²
N° locali: 10+
N° bagni: 12
N° Camere: 15
Piano: Su due livelli
Box: Doppio
Cucina: Si
Giardino: Privato
Esposizione: Sud-Ovest

Efficenza energetica

Classe energetica: E
Ipe: 295,32 kwh_m2
Condizioni stabile: Molto buono
Riscaldamento: Autonomo

Dati inserzione

ID Offrocasa.com: 10918211
Data inserimento: 18/11/2025
Rif. Agenzia: CBI135-2937-2064
Rif. Agenzia CBI135-2937-2064

Coldwell Banker Immobiliare Morabito

Corso Sempione, 44 - Milano
+(39) 3492795950
Richiedi Info dal form:
Accetto l'Informativa Privacy


Coldwell Banker Immobiliare Morabito

Corso Sempione, 44 - Milano

Villa in Vendita a Grazzano Badoglio, 3'980'000€, 2700 m²

Chiama
Contatta