Bilocale in Vendita a Bari, 150'000€, 78 m²

Locali: 2
Bagni: 1
Camere: 2
Piano: Terra
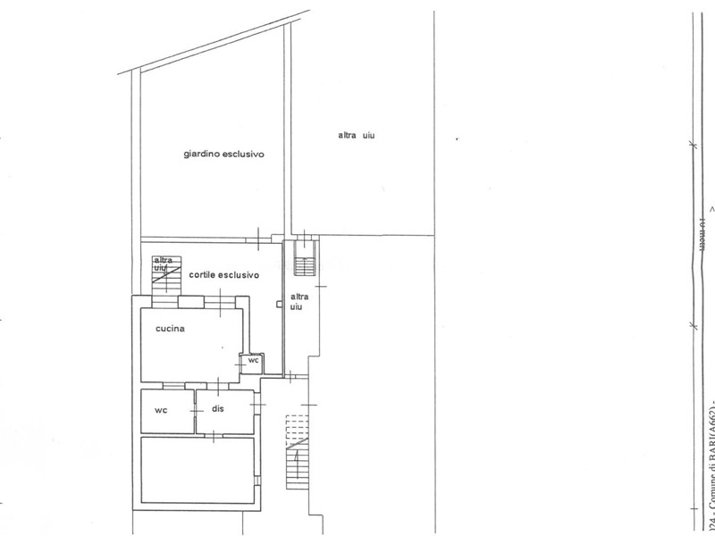
Nella bella e alberata Via Putignani, tra Via Sagarriga Visconti e Piazza Risorgimento, nella zona murattiana, ricca di tutti i servizi. Lo stabile degli anni '40, dalla affascinante struttura architettonica, è provvisto di ascensore ed è ben abitato. L'immobile, in categoria catastale A/4, è di mq. 78 ca., ed ha le volte alte mt 2,70. E' composto dall'ingresso, il soggiorno/cucina con doppio affaccio sul cortile interno di proprietà, 1 camera con finestra sull'androne, 1 cameretta con luce indiretta ed il servizio. Il giardino privato a cui si accede dal cortile privato ha alberi da frutto ed un'altissima palma. L'immobile è da ristrutturare L'appartamento viene venduto unitamente al locale a piano interrato, di mq. 220, con accesso sia dal vano scale che dal giardino, il cui costo è di ulteriori ? 30.000,00 Per maggiori informazioni e per visitare l'immobile contattaci: Gabetti Franchising Centro, Madonnella e Garibaldi - Luciana Lorusso Immobiliare, Tel. 080.5216726 e 342.1411856 Siamo a disposizione per una consulenza gratuita presso i nostri uffici a Bari in Via Calefati 142 in angolo con Via marchese di Montrone. Le foto denominate Home Staging, rappresentano un'ipotesi di ristrutturazione frutto dell'intelligenza artificiale. Sono quindi meramente indicative e non rispecchiano perfettamente lo stato dei luoghi.

Condizioni economiche

Contratto: Vendita
Prezzo: 150'000€
Arredato: No
Libero: Si

Informazioni principali

Tipologia: Bilocale
Città: Bari
Superficie: 78 m²
N° locali: 2
N° bagni: 1
N° Camere: 2
Piano: Terra
Cucina: Abitabile
Giardino: Privato

Efficenza energetica

Classe energetica:
Anno di costruzione: 1940

Caratteristiche

Ascensore: Si

Dati inserzione

ID Offrocasa.com: 10917797
Data inserimento: 16/11/2025
Rif. Agenzia: Cod. rif 3164663VRG
Rif. Agenzia Cod. rif 3164663VRG

Gabetti

Via Calefati, 142 ang. Via Marchese di Montrone - - Bari
080/5216726
Richiedi Info dal form:
Accetto l'Informativa Privacy


Condividi

Gabetti

Via Calefati, 142 ang. Via Marchese di Montrone - - Bari

Bilocale in Vendita a Bari, 150'000€, 78 m²

Chiama
Contatta