Villa in Vendita a Chiavari, zona LUNGOMARE, 1'250'000€, 400 m², arredato

Locali: 10+
Bagni: 2
Camere: 6
Piano: BIPIANO
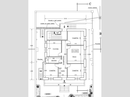
Rif. 8008 A – Chiavari – Corso Buenos Aires – Villa bifamigliare di 360 MQ – Elegante – Centralissima – Rara opportunità – In zona comoda e silenziosa – Soleggiata – Carrabile – Vicina a tutti i servizi – A cento metri dal mare di Ponente ed il centro che è possibile raggiungere a piedi in pochissimi muniti. – Senza spese di amministrazione – Termoautonoma – Impianti recenti con Aria Condizionata ed allarme – Composta da due appartamenti indipendenti con ampio garage e cantina con accesso carrabile telecomandato dal giardino – La villa è situata in una delle zone più ricercate della città con possibilità di ascensore privato di collegamento ai piani – Tetto, facciate e zone comuni in ottime condizioni – Bellissimi pavimenti d’epoca perfettamente conservati – Il primo appartamento al piano rialzato è composto da: Ingresso indipendente – Ampio Soggiorno – Cucina abitabile – Bagno con finestra con possibilità secondo bagno – 3 Camere da letto matrimoniali – Giardino carrabile – Ampio BiBox – Taverna – Il secondo appartamento al primo piano è composto da: Ingresso indipendente – Soggiorno ampio – Cucina abitabile – Tre Camere da letto matrimoniali – Disimpegno – Bagno finestrato con possibilità secondo bagno – Due Terrazzine al piano – Ampio sottotetto con possibilità di ricavare due ulteriori camere da letto, un bagno e un terrazzino a pozzetto – Ampio BiBox sottostante – Taverna – Richiesta Euro 1.250.000,00 – Gobleu Immobiliare – PER INFO DIRETTE E APPUNTAMENTI 3665914174 SU WHATSAPP OPPURE DIRETTAMENTE IN AGENZIA IN RAPALLO CORSO ITALIA 2 APERTA TUTTI I GIORNI ESCLUSO FESTIVI FOR DIRECT INFO AND APPOINTMENTS 3665914174 ON WHATSAPP OR DIRECTLY AT THE AGENCY IN RAPALLO CORSO ITALIA 2 OPEN EVERY DAY EXCEPT HOLIDAYS

Condizioni economiche

Contratto: Vendita
Prezzo: 1'250'000€
Prezzo trattabile: SI
Arredato: SI
Libero: SI

Informazioni principali

Tipologia: Villa
Città: Chiavari
Zona: LUNGOMARE
Vicinanze: CENTRO
Superficie: 400 m²
N° locali: 10+
N° bagni: 2
N° Camere: 6
Piano: BIPIANO
N° balconi: 4
Box: QUADRIBOX
Posto auto: 4
Cucina: ABITABILE
Giardino: SI
Esposizione: SUD

Efficenza energetica

Classe energetica: F
Ipe: 114
Climatizzatore: SI
Anno di costruzione: 1950
Condizioni stabile: OTTIME
Ristrutturato: SI
Pavimenti: OTTIMI
Serramenti esterni: OTTIMI
Impianti a norma: SI
Riscaldamento: AUTONOMO

Caratteristiche

Cantina: SI
Ascensore: NO
Porta blindata: SI
Cancello elettrico: SI
Videocitofono: NO
Satellite: SI
Impianto allarme: SI

Dati inserzione

ID Offrocasa.com: 10917541
Data inserimento: 15/11/2025
Rif. Agenzia: 8008 A
Rif. Agenzia 8008 A

GOBLEU IMMOBILIARE

CORSO ITALIA 2 - RAPALLO (Genova)
3665914174
Richiedi Info dal form:
Accetto l'Informativa Privacy


GOBLEU IMMOBILIARE

CORSO ITALIA 2 - RAPALLO (Genova)

Villa in Vendita a Chiavari, zona LUNGOMARE, 1'250'000€, 400 m², arredato

Chiama
Contatta