Villa bifamiliare in Vendita a Monselice, 295'000€, 150 m², con Box

Locali: 5
Bagni: 2
Camere: 3
Piano: Su più livelli
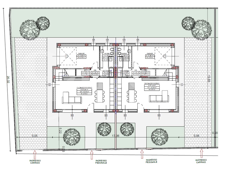
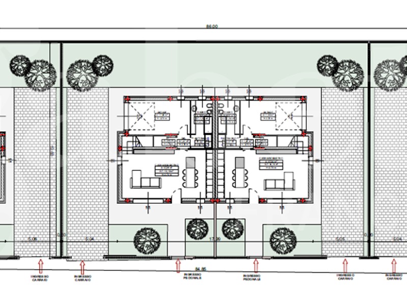
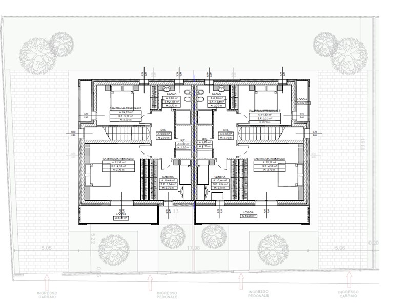
NUOVO INTERVENTO A VANZO. Porzione Bifamiliare esposta a nord-est-ovest e distribuita su due livelli con scoperto esclusivo di proprietà di 200 metri quadri. La zona giorno in un unico ambiente di circa 40 metri quadrati si affaccia mediante una grande vetrata apribile sul grande giardino esterno, la quale viene completata da bagno di servizio e dal ripostiglio. La zona notte al piano primo si compone di 3 ampie camere da letto di diverse metrature, una matrimoniale di oltre 20 mq, una doppia di 14 mq e una di circa 11 mq. Completa la soluzione il garage. Capitolato visibile in ufficio. Consegna chiavi in mano prevista entro ottobre 2026. Classe energetica A4 Prezzo: euro 295.000,00* oltre IVA e spese accessorie. La progettazione dell'intervento si è sviluppata seguendo le esigenze abitative evidenziate dalle famiglie di zona in un indagine di mercato condotta tra il 2023 ed il 2024. esigenze evidenziate: - abitare una zona che dia accesso alle principali vie di comunicazione oltre che silenziosa evitando il traffico urbano. - consentire una serena convivenza tra i componenti del nucleo familiare. - possibilità di vivere l'esterno come ambiente privato dell'abitazione. - possedere un immobile che rispecchi i nuovi canoni costruttivi sia per efficienza energetica che per comfort abitativo - semplicità di gestione dell'abitazione. -l'immobile sarà realizzato con tutte le nuove tecniche e tecnologie costruttive per l'efficienza energetica: impianto fotovoltaico, pompa di calore, riscaldamento a pavimento, predisposizione VMC. ZONA COINVOLTE: Padova, Monselice, Este, Solesino, Sant'Elena, Abano Terme, Montegrotto Terme, Battaglia Terme, Baone, Conselve. GABETTI MONSELICE Via Cavallotti, 28 - 35043 Monselice T. +39 0429 1700 809 M. +39 345 035 3393 monselice@gabetti.it www.gabetti.it

Condizioni economiche

Contratto: Vendita
Prezzo: 295'000€

Informazioni principali

Tipologia: Villa bifamiliare
Città: Monselice
Superficie: 150 m²
N° locali: 5
N° bagni: 2
N° Camere: 3
Piano: Su più livelli
Box: Si
Cucina: Abitabile
Giardino: Privato

Efficenza energetica

Classe energetica: 2015-A4
Ipe: 72.45 kwm2
Anno di costruzione: 0
Riscaldamento: autonomo

Caratteristiche

Videocitofono: Si

Dati inserzione

ID Offrocasa.com: 10917300
Data inserimento: 15/11/2025
Rif. Agenzia: Cod. rif 3219613VRG
Rif. Agenzia Cod. rif 3219613VRG

Gabetti

Via Cavallotti 28 - Monselice (Padova)
0429/1700809
Richiedi Info dal form:
Accetto l'Informativa Privacy


Gabetti

Via Cavallotti 28 - Monselice (Padova)

Villa bifamiliare in Vendita a Monselice, 295'000€, 150 m², con Box

Chiama
Contatta