Trilocale in Vendita a Varese Ligure, 8'019€, 48 m²

Locali: 3
Camere: 1
Piano: 1
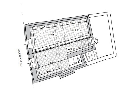
Piena proprietà appartamento ubicato nel Comune di Varese Ligure(SP) Via Portici civ.10(ex 82) al piano primo di costruzione distribuita su tre livelli fuori terra posta all’interno del borgo storico medievale, denominato ‘borgo rotondo’, oltre a magazzino Via Portici civ. 45 - Il Prezzo visualizzato è la Base d'Asta in quanto l’immobile è oggetto di esecuzione immobiliare venduto tramite Asta Giudiziaria. - L'immobile aggiudicato, viene venduto libero e sgombro da persone cose ed ipoteche nello stato di fatto e di diritto in cui si trova. - Non rappresentiamo il Tribunale, ma lavoriamo nell'esclusivo interesse del potenziale acquirente per garantire un acquisto sicuro. - I consulenti di ASTE ITALIA ti assisteranno in tutte le attività dell'iter giudiziario dalla visita dell'immobile fino alla consegna chiavi. - Contatta il nostro Servizio Clienti , i nostri operatori sono a disposizione per chiarire i molteplici dubbi per partecipare alle ASTE.

Condizioni economiche

Contratto: Vendita
Prezzo: 8'019€
Arredato: No

Informazioni principali

Tipologia: Trilocale
Città: Varese Ligure
Superficie: 48 m²
N° locali: 3
N° Camere: 1
Piano: 1
Cucina: Angolo cottura

Efficenza energetica

Classe energetica: G
Anno di costruzione: 0
Condizioni stabile: Discreto
Riscaldamento: Autonomo

Dati inserzione

ID Offrocasa.com: 10915899
Data inserimento: 13/11/2025
Rif. Agenzia: GE109/24LU-1211-25-1200
Rif. Agenzia GE109/24LU-1211-25-1200

Domy Online S.r.l.

Via San Lorenzo 5/41 - Genova
010.8935187
Richiedi Info dal form:
Accetto l'Informativa Privacy


Domy Online S.r.l.

Via San Lorenzo 5/41 - Genova

Trilocale in Vendita a Varese Ligure, 8'019€, 48 m²

Chiama
Contatta