Villa bifamiliare in Vendita a Castel Maggiore, 645'000€, 186 m², con Box

Locali: 6
Bagni: 3
Camere: 4
Piano: Su più livelli
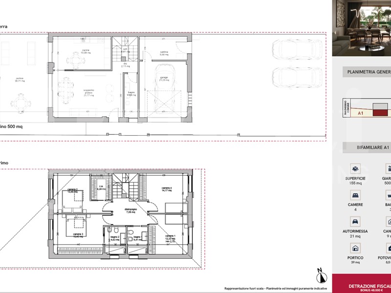
CASTEL MAGGIORE - in costruzione, consegna settembre 2026 - A 10 minuti di macchina da Bologna VIA MURAGLIA, alle spalle del centro commerciale Le Piazze, VILLA bifamiliare. L'edificio ad altissima efficienza energetica classe A4 quasi NZEB (Edificio a consumo Energia Quasi Zero), installazione di pannelli fotovoltaici per una potenza di 8,5 KWp, no gas. Costruito a nuovo con tecnologie e materiali green ed ecocompatibili, struttura antisismica. Cascina Muraglia, è composta da una sola villa con due generose porzioni dotate di ampi giardini di proprietà. La porzione di villa bifamiliare, si sviluppa su due piani. P.T. soggiorno, cucina abitabile, bagno, garage e cantina, portico a doppia altezza. 1°P. quattro camere da letto - di cui una con cabina armadio -, due bagni. Abitare in Cascina Muraglia è un piacere emozionale che migliora il tuo benessere. Detrazione fiscale per bonus casa fino a 48.000 euro. NESSUNA COMMISSIONE A CARICO DELL'ACQUIRENTE. Consegna Settembre 2026.

Condizioni economiche

Contratto: Vendita
Prezzo: 645'000€
Libero: Si

Informazioni principali

Tipologia: Villa bifamiliare
Città: Castel Maggiore
Superficie: 186 m²
N° locali: 6
N° bagni: 3
N° Camere: 4
Piano: Su più livelli
Box: Si
Cucina: Abitabile
Giardino: Privato

Efficenza energetica

Classe energetica: 2015-A4
Ipe: 10.00 kwm2
Anno di costruzione: 2025
Riscaldamento: autonomo

Caratteristiche

Cantina: Si

Dati inserzione

ID Offrocasa.com: 10915703
Data inserimento: 13/11/2025
Rif. Agenzia: Cod. rif 3270770VRG
Rif. Agenzia Cod. rif 3270770VRG

Gabetti

via Gramsci 111/A - Castel Maggiore (Bologna)
051/6321616
Richiedi Info dal form:
Accetto l'Informativa Privacy


Gabetti

via Gramsci 111/A - Castel Maggiore (Bologna)

Villa bifamiliare in Vendita a Castel Maggiore, 645'000€, 186 m², con Box

Chiama
Contatta