Trilocale in Vendita a Guidonia Montecelio, zona Guidonia, 210'000€, 70 m²

Locali: 3
Piano: 1
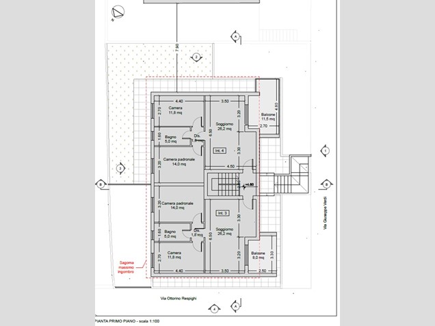
Guidonia - Loc. tà Casa Calda - NUOVA COSTRUZIONE - Proponiamo un’opportunità unica per chi desidera una casa moderna, efficiente, confortevole e sostenibile, in un contesto tranquillo ma vicino a tutti i servizi; due appartamenti esclusivi in classe energetica A4, posti al primo piano di 70 mq c. a. , realizzati con le più moderne tecnologie di efficienza energetica e comfort abitativo. Ogni appartamento è composto da: ampio soggiorno con angolo cottura, disimpegno, due camere da letto, bagno finestrato con finiture personalizzabili e balconi coperti abitabili. Ogni abitazione dispone inoltre di posto auto scoperto di proprietà. Caratteristiche tecniche e dotazioni: Gli appartamenti sono realizzati secondo i più alti standard costruttivi e di sostenibilità ambientale, con materiali di qualità ed impianti di ultima generazione, tra cui: - Classe energetica A4 – la più alta, per un risparmio reale sui consumi. - Riscaldamento a pavimento radiante per un comfort termico omogeneo in ogni ambiente. - Impianto di climatizzazione caldo/freddo. - Pannelli fotovoltaici da 1,5 kW per la produzione di energia elettrica rinnovabile. Pavimenti in gres porcellanato di qualità, rivestimenti bagno, sanitari e rubinetteria a scelta del cliente tra soluzioni moderne e raffinate. Consegna prevista: Settembre 2026 € 210.000, 00 Per ulteriori informazioni, non esitate a contattarci. Tel. 0774/345095 - 346609 Cell. 3293292620 - 3480320848.

Condizioni economiche

Contratto: Vendita
Prezzo: 210'000€
Arredato: No

Informazioni principali

Tipologia: Trilocale
Città: Guidonia Montecelio
Zona: Guidonia
Superficie: 70 m²
N° locali: 3
Piano: 1

Efficenza energetica

Classe energetica: A4
Anno di costruzione: 2026
Condizioni stabile: Nuovo

Dati inserzione

ID Offrocasa.com: 10914878
Data inserimento: 12/11/2025
Rif. Agenzia: NCO11
Rif. Agenzia NCO11

Immobiliare Servizio Casa 93 sas

Via Roma 17 - Guidonia Montecelio (RM)
0774.346618
Richiedi Info dal form:
Accetto l'Informativa Privacy


Condividi

Immobiliare Servizio Casa 93 sas

Via Roma 17 - Guidonia Montecelio (RM)

Trilocale in Vendita a Guidonia Montecelio, zona Guidonia, 210'000€, 70 m²

Chiama
Contatta