Casa Semi Indipendente in Vendita a Predosa, 27'000€, 312 m²

Locali: 9
Camere: 3
Piano: t
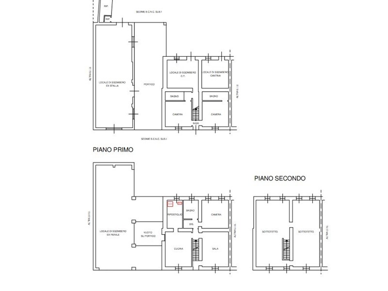
Fabbricato disposto su 3 piani f.t. parzialmente ristrutturato con locali accessori e cortile pertinenziale di circa mq.1000. Il piano terra è composto da ingresso, due camere, due bagni, locale sgombero uso c.t., locale sgombero uso cantina, locale sgombero (ex stalla), portico, due ripostigli in precarie condizioni; il piano primo da sala, cucina, disimpegno, camera, bagno, ripostiglio, locale di sgombero (ex fienile); il piano secondo da due locali sottotetto. Locale di sgombero e tettoia. - Il Prezzo visualizzato è la Base d'Asta in quanto l’immobile è oggetto di esecuzione immobiliare venduto tramite Asta Giudiziaria. - L'immobile aggiudicato, viene venduto libero e sgombro da persone cose ed ipoteche nello stato di fatto e di diritto in cui si trova. - Non rappresentiamo il Tribunale, ma lavoriamo nell'esclusivo interesse del potenziale acquirente per garantire un acquisto sicuro. - I consulenti di ASTE ITALIA ti assisteranno in tutte le attività dell'iter giudiziario dalla visita dell'immobile fino alla consegna chiavi. - Contatta il nostro Servizio Clienti , i nostri operatori sono a disposizione per chiarire i molteplici dubbi per partecipare alle ASTE.

Condizioni economiche

Contratto: Vendita
Prezzo: 27'000€
Arredato: No

Informazioni principali

Tipologia: Casa Semi Indipendente
Città: Predosa
Superficie: 312 m²
N° locali: 9
N° Camere: 3
Piano: t
Cucina: Abitabile

Efficenza energetica

Classe energetica: G
Anno di costruzione: 0
Condizioni stabile: Discreto
Riscaldamento: Autonomo

Caratteristiche

Cantina: Si

Dati inserzione

ID Offrocasa.com: 10914856
Data inserimento: 12/11/2025
Rif. Agenzia: AL38/24L1-0403-26-0945
Rif. Agenzia AL38/24L1-0403-26-0945

ASTE ITALIA

Via Serra 6 Int 7 - Genova (GE)
010.8935240
Richiedi Info dal form:
Accetto l'Informativa Privacy


ASTE ITALIA

Via Serra 6 Int 7 - Genova (GE)

Casa Semi Indipendente in Vendita a Predosa, 27'000€, 312 m²

Chiama
Contatta