Bilocale in Vendita a Rezzato, 150'000€, 75 m²

Locali: 2
Bagni: 2
Camere: 1
Piano: 1
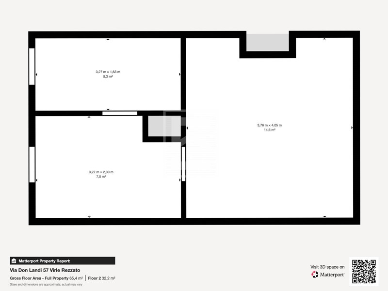
Rif: DM-022-278 Appartamento bilocale doppi sevizi con terrazza, loggia e box esclusivo in vendita a Virle. A Virle, frazione di Rezzato comoda ai servizi, si propone in vendita bell' appartamento bilocale di circa 65 mq, al primo piano di un recente residence di poche unità. La scala a servizio di sole 2 unità porta alla loggia in ingresso, un bello spazio per mangiare all' aperto. Il portoncino blindato si apre sulla zona giorno dove troviamo un ulteriore accesso alla loggia e l'ampio e funzionale angolo cucina con penisola. Un pratico disimpegno unisce la zona giorno alla toilette al piano ed alla scala della zona notte. La zona notte è composta da un bagno finestrato con doccia e attacco lavatrice e da una grande camera matrimoniale con accesso alla terrazza esclusiva. E' caratterizzata da parquet ed è climatizzata. L' appartamento viene venduto completo di arredi. Completa la proposta un box singolo all' interno del residence. Le spese condominiali sono contenute. Annuncio a carattere informativo e commerciale: i dati riportati non hanno valore contrattuale e possono essere soggetti a modifiche.

Condizioni economiche

Contratto: Vendita
Prezzo: 150'000€
Arredato: Arredato
Spese condominiali: 30€
Libero: Si

Informazioni principali

Tipologia: Bilocale
Città: Rezzato
Superficie: 75 m²
N° locali: 2
N° bagni: 2
N° Camere: 1
Piano: 1
Box: Singolo
Esposizione: Est

Efficenza energetica

Classe energetica: C
Anno di costruzione: 2005
Condizioni stabile: Buono
Riscaldamento: Autonomo

Dati inserzione

ID Offrocasa.com: 10914646
Data inserimento: 12/11/2025
Rif. Agenzia: 33091022-278
Rif. Agenzia 33091022-278

Edilfin srl

via Giorgio Strehler 19 - Manerba del Garda (Brescia)
0365551761
Richiedi Info dal form:
Accetto l'Informativa Privacy


Condividi

Edilfin srl

via Giorgio Strehler 19 - Manerba del Garda (Brescia)

Bilocale in Vendita a Rezzato, 150'000€, 75 m²

Chiama
Contatta