Appartamento in Vendita a Savona, 350'000€, 250 m²

Locali: 8
Bagni: 2
Camere: 7
Piano: 2
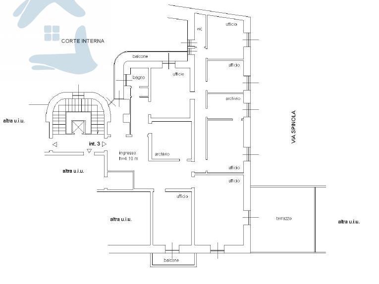
Elegante appartamento con terrazzo nel prestigioso Palazzo dei Pavoni – Via Paleocapa 5 Nel cuore della città, all’interno del rinomato Palazzo dei Pavoni, uno degli edifici più affascinanti e rappresentativi di Via Paleocapa, proponiamo in vendita un appartamento di grande prestigio di circa 250 mq situato al secondo piano con ascensore. L’immobile si distingue per la sua eleganza e per gli ampi ambienti luminosi, distribuiti in otto locali che si prestano perfettamente a diverse soluzioni. Ogni spazio è curato nei dettagli e conserva il fascino storico del palazzo. Punto di forza dell’immobile è senza dubbio il magnifico terrazzo di circa 30 mq, dal quale si può ammirare la via principale e godere di una vista incantevole sulla Chiesa di Sant’Andrea. Un luogo ideale per momenti di relax o per accogliere ospiti in un contesto esclusivo. Il Palazzo dei Pavoni è da sempre simbolo di eleganza e raffinatezza, con le sue facciate decorate e gli interni di grande valore architettonico. La posizione è strategica: a pochi passi dai principali servizi, dal porto crociere, dai mezzi pubblici e dalla stazione, nel pieno centro cittadino caratterizzato da un elegante mercato rionale del lunedì. Posti auto condominiali nel cortile interno. L'appartamento è attualmente adibito ad ufficio ma può essere trasformato in abitazione con un cambio doi destinazione d'uso.

Condizioni economiche

Contratto: Vendita
Prezzo: 350'000€
Arredato: Non arredato
Libero: Si

Informazioni principali

Tipologia: Appartamento
Città: Savona
Superficie: 250 m²
N° locali: 8
N° bagni: 2
N° Camere: 7
Piano: 2
Cucina: Si

Efficenza energetica

Classe energetica: G
Condizioni stabile: Buono
Riscaldamento: Centralizzato

Caratteristiche

Ascensore: Si

Dati inserzione

ID Offrocasa.com: 10914371
Data inserimento: 12/11/2025
Rif. Agenzia: 429
Rif. Agenzia 429

Immo City

Via Pietro Cossa 75 A - Torino
011.799793
Richiedi Info dal form:
Accetto l'Informativa Privacy


Condividi

Immo City

Via Pietro Cossa 75 A - Torino

Appartamento in Vendita a Savona, 350'000€, 250 m²

Chiama
Contatta