Ufficio in Vendita a Genova, 176'250€, 160 m²

Locali: 7
Piano: t
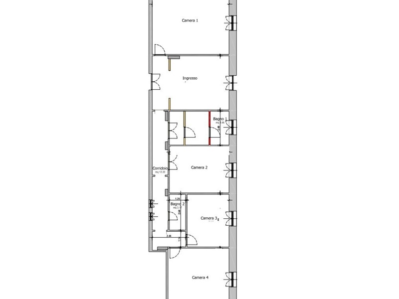
Genova –Via Bertora edificio 3 int 2 piano T-S immobile uso ufficio ( con possibilità di cambio di destinazione d'uso) situato a piano terra in via tranquilla alle spalle di Via Assarotti dotato di ampio ingresso collegato ad una prima camera,corridoio che serve due servizi igienici ed ulteriori tre camere, con cantina al piano sottostante. In discrete condizioni. - Il Prezzo visualizzato è la Base d'Asta in quanto l’immobile è oggetto di esecuzione immobiliare venduto tramite Asta Giudiziaria. - L'immobile aggiudicato, viene venduto libero e sgombro da persone cose ed ipoteche nello stato di fatto e di diritto in cui si trova. - Non rappresentiamo il Tribunale, ma lavoriamo nell'esclusivo interesse del potenziale acquirente per garantire un acquisto sicuro. - I consulenti di ASTE ITALIA ti assisteranno in tutte le attività dell'iter giudiziario dalla visita dell'immobile fino alla consegna chiavi. - Contatta il nostro Servizio Clienti , i nostri operatori sono a disposizione per chiarire i molteplici dubbi per partecipare alle ASTE.

Condizioni economiche

Contratto: Vendita
Prezzo: 176'250€
Arredato: No

Informazioni principali

Tipologia: Ufficio
Città: Genova
Superficie: 160 m²
N° locali: 7
Piano: t

Efficenza energetica

Classe energetica: G
Anno di costruzione: 0
Condizioni stabile: Discreto
Riscaldamento: Autonomo

Caratteristiche

Cantina: Si

Dati inserzione

ID Offrocasa.com: 10913969
Data inserimento: 11/11/2025
Rif. Agenzia: GE534/24LU-1012-25-1230
Rif. Agenzia GE534/24LU-1012-25-1230

Domy Online S.r.l.

Via San Lorenzo 5/41 - Genova
010.8935187
Richiedi Info dal form:
Accetto l'Informativa Privacy


Domy Online S.r.l.

Via San Lorenzo 5/41 - Genova

Ufficio in Vendita a Genova, 176'250€, 160 m²

Chiama
Contatta