Trilocale in Vendita a Guidonia Montecelio, zona Guidonia, 210'000€, 70 m²

Locali: 3
Piano: t
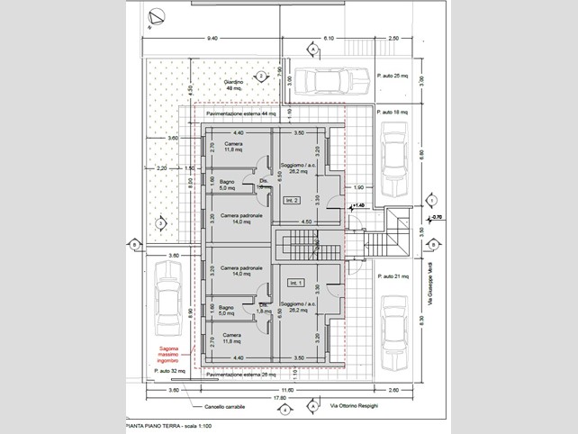
Guidonia - Loc. tà Casa Calda - NUOVA COSTRUZIONE - Proponiamo un’opportunità unica per chi desidera una casa moderna, efficiente, confortevole e sostenibile, in un contesto tranquillo ma vicino a tutti i servizi; quattro appartamenti esclusivi in classe energetica A4, realizzati con le più moderne tecnologie di efficienza energetica e comfort abitativo. Sono disponibili due unità al piano terra e due al primo piano, ciascuna di circa 70 mq, perfettamente progettate per garantire funzionalità, luminosità e benessere quotidiano. Ogni appartamento è composto da: ampio soggiorno con angolo cottura, disimpegno, due camere da letto, bagno finestrato con finiture personalizzabili. Le unità al piano terra dispongono di giardino privato ed ingresso indipendente, ideale per godersi momenti di relax all’aperto, mentre le unità al primo piano sono arricchite da balconi coperti abitabili. Ogni abitazione dispone inoltre di posto auto scoperto di proprietà. Caratteristiche tecniche e dotazioni: Gli appartamenti sono realizzati secondo i più alti standard costruttivi e di sostenibilità ambientale, con materiali di qualità ed impianti di ultima generazione, tra cui: - Classe energetica A4 – la più alta, per un risparmio reale sui consumi. - Riscaldamento a pavimento radiante per un comfort termico omogeneo in ogni ambiente. - Impianto di climatizzazione caldo/freddo. - Pannelli fotovoltaici da 1,5 kW per la produzione di energia elettrica rinnovabile. Pavimenti in gres porcellanato di qualità, rivestimenti bagno, sanitari e rubinetteria a scelta del cliente tra soluzioni moderne e raffinate. Consegna prevista: Settembre 2026 € 210.000, 00 Per ulteriori informazioni, non esitate a contattarci. Tel. 0774/345095 - 346609 Cell. 3293292620 - 3480320848.

Condizioni economiche

Contratto: Vendita
Prezzo: 210'000€
Arredato: No

Informazioni principali

Tipologia: Trilocale
Città: Guidonia Montecelio
Zona: Guidonia
Superficie: 70 m²
N° locali: 3
Piano: t

Efficenza energetica

Classe energetica: A4
Ipe: 351 KWh/m2a
Anno di costruzione: 2026
Condizioni stabile: Nuovo

Dati inserzione

ID Offrocasa.com: 10913858
Data inserimento: 11/11/2025
Rif. Agenzia: NCO
Rif. Agenzia NCO

Immobiliare Servizio Casa 93 sas

Via Roma 17 - Guidonia Montecelio (RM)
0774.346618
Richiedi Info dal form:
Accetto l'Informativa Privacy


Condividi

Immobiliare Servizio Casa 93 sas

Via Roma 17 - Guidonia Montecelio (RM)

Trilocale in Vendita a Guidonia Montecelio, zona Guidonia, 210'000€, 70 m²

Chiama
Contatta