Villa bifamiliare in Vendita a Aprilia, 275'000€, 130 m²

Locali: 4
Bagni: 2
Camere: 3
Piano: Su più livelli
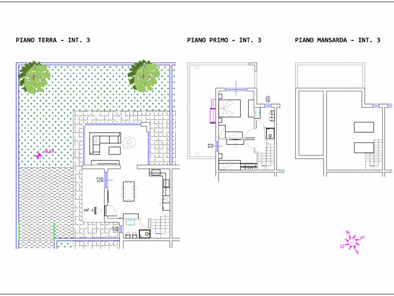
Nuova Costruzione ad Aprilia - Complesso di 4 porzioni di villa quadrifamiliare e una soluzione completamente indipendente. In Via Cervino, zona Vallelata, proponiamo un'opportunità unica per vivere in un ambiente elegante e confortevole, immerso nel verde ma a poca distanza dai principali servizi della città. Ogni porzione di villa dispone di un ingresso indipendente che conduce all'ampio giardino privato con posto auto interno. La porzione di villa è disposta su tre piani ed è così composta: al piano terra troviamo un salone living, cucina a vista, bagno, una serra e un portico. Tramite una scala interna si accede al piano notte dove sono disposte due camere, un bagno e un terrazzo. A completare la proprietà, una mansarda con lucernai che offre uno spazio aggiuntivo ideale per uno studio, una camera extra o un'area relax. Ogni unità è progettata per offrire il massimo comfort, risparmio energetico e possibilità di personalizzazione. È dotata di riscaldamento a pavimento, predisposizione per aria condizionata caldo/freddo, serrande elettriche, pannelli fotovoltaici da 3 KW e predisposizione per sistema di antifurto. Possibilità di accollo mutuo. Queste nuove porzioni di ville quadrifamiliari sono la soluzione ideale per chi cerca una casa moderna, elegante e altamente efficiente in una zona tranquilla. La costruzione è pensata per offrire un'elevata qualità abitativa e una grande attenzione ai dettagli, rifinita con materiali di alta qualità e con la possibilità di personalizzare ogni ambiente per creare la casa dei propri sogni. Noi costruiamo il vostro futuro progetto: personalizzate la vostra casa secondo i vostri gusti. Contattaci Se devi vendere per acquistare, siamo pronti ad aiutarti! Per maggiori informazioni o per fissare un appuntamento, contattaci subito ai numeri: 0692702582 - 0692702525

Condizioni economiche

Contratto: Vendita
Prezzo: 275'000€
Arredato: No
Libero: Si

Informazioni principali

Tipologia: Villa bifamiliare
Città: Aprilia
Superficie: 130 m²
N° locali: 4
N° bagni: 2
N° Camere: 3
Piano: Su più livelli
Box: Doppio
Cucina: Abitabile
Giardino: Privato

Efficenza energetica

Classe energetica: 2015-A4
Ipe: 0.20 kwm2
Anno di costruzione: 2025
Riscaldamento: autonomo

Caratteristiche

Videocitofono: Si

Dati inserzione

ID Offrocasa.com: 10913781
Data inserimento: 11/11/2025
Rif. Agenzia: Cod. rif 3274033VRG
Rif. Agenzia Cod. rif 3274033VRG

Grimaldi Immobiliare

Via Goito 19 - Aprilia (Latina)
069276288
Richiedi Info dal form:
Accetto l'Informativa Privacy


Grimaldi Immobiliare

Via Goito 19 - Aprilia (Latina)

Villa bifamiliare in Vendita a Aprilia, 275'000€, 130 m²

Chiama
Contatta