Villa bifamiliare in Vendita a Anzio, 299'000€, 100 m²

Locali: 4
Bagni: 2
Camere: 3
Piano: Su più livelli
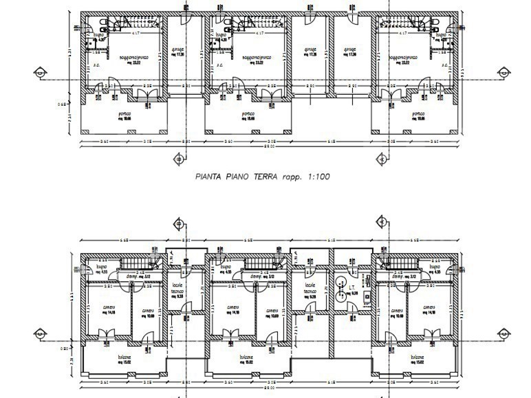
Anzio Lavinio Mare, in contesto residenziale tranquillo e ben collegato, a pochi minuti dal mare e dai principali servizi proponiamo in vendita villa di nuova costruzione realizzata con materiali di alta qualità e dotata delle più moderne tecnologie per il risparmio energetico, con ottime rifiniture e disposta su due livelli. Al piano terra si compone di un ampio salone con angolo cottura, luminoso e funzionale, con accesso diretto al giardino privato fronte e retro e bagno. Al primo piano troviamo tre camere da letto, un bagno e un balcone panoramico. All'esterno la proprietà dispone di posto auto interno riservato e di ampi spazi verdi perfetti per la vita all'aperto. L'immobile è dotato di impianto fotovoltaico da 3kw e pannello solare per il massimo risparmio energetico, impianto di riscaldamento autonomo a metano e predisposizione impianto aria condizionata. Classe energetica A+. Pronta consegna. Una soluzione ideale per chi desidera vivere in un ambiente moderno, efficiente e vicino al mare, senza rinunciare alla tranquillità e al comfort. Principali distanze: Servizi 200 mt Mare 600 mt P.zza Lavinia 500 mt

Condizioni economiche

Contratto: Vendita
Prezzo: 299'000€

Informazioni principali

Tipologia: Villa bifamiliare
Città: Anzio
Superficie: 100 m²
N° locali: 4
N° bagni: 2
N° Camere: 3
Piano: Su più livelli
Posto auto: Si
Giardino: Privato

Efficenza energetica

Classe energetica:
Anno di costruzione: 2025
Riscaldamento: autonomo

Dati inserzione

ID Offrocasa.com: 10913104
Data inserimento: 09/11/2025
Rif. Agenzia: Viole trif centraleVRG
Rif. Agenzia Viole trif centraleVRG

Gabetti

Via Ardeatina 486 - Anzio (Roma)
06/9814447
Richiedi Info dal form:
Accetto l'Informativa Privacy


Gabetti

Via Ardeatina 486 - Anzio (Roma)

Villa bifamiliare in Vendita a Anzio, 299'000€, 100 m²

Chiama
Contatta