Quadrilocale in Vendita a Cuneo, 76'200€, 65 m², con Box

Locali: 4
Camere: 1
Piano: 1
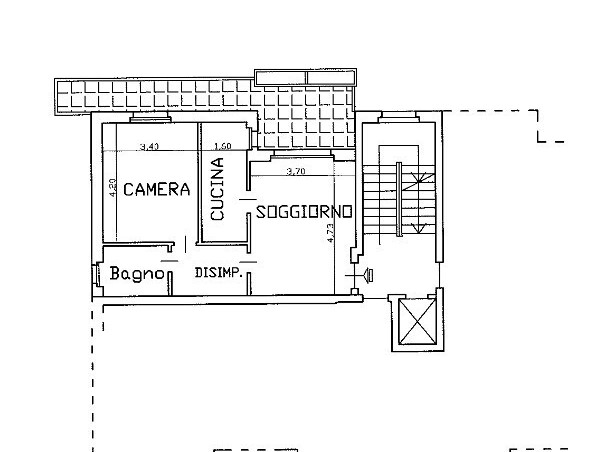
Piena proprietà (per la quota di 1/1) di •Bene N° 3 - Appartamento ubicato a Cuneo (CN) - Via Beppe Fenoglio n. 14/A, scala A, piano 1-S1, facente parte di un complesso residenziale denominato "I LARICI", composto da soggiorno, cucina, un piccolo disimpegno da cui si accede al bagno ed alla camera da letto, ampio terrazzo, cantina pertinenziale al piano interrato;•Bene N° 4 - Garage ubicato a Cuneo (CN) - Via Beppe Fenoglio n. 14/A, piano S1, facente parte di un complesso residenziale denominato "I LARICI". - Il Prezzo visualizzato è la Base d'Asta in quanto l’immobile è oggetto di esecuzione immobiliare venduto tramite Asta Giudiziaria. - L'immobile aggiudicato, viene venduto libero e sgombro da persone cose ed ipoteche nello stato di fatto e di diritto in cui si trova. - Non rappresentiamo il Tribunale, ma lavoriamo nell'esclusivo interesse del potenziale acquirente per garantire un acquisto sicuro. - I consulenti di ASTE ITALIA ti assisteranno in tutte le attività dell'iter giudiziario dalla visita dell'immobile fino alla consegna chiavi. - Contatta il nostro Servizio Clienti , i nostri operatori sono a disposizione per chiarire i molteplici dubbi per partecipare alle ASTE.

Condizioni economiche

Contratto: Vendita
Prezzo: 76'200€
Arredato: No

Informazioni principali

Tipologia: Quadrilocale
Città: Cuneo
Superficie: 65 m²
N° locali: 4
N° Camere: 1
Piano: 1
Box: Si
Cucina: Abitabile

Efficenza energetica

Classe energetica: G
Anno di costruzione: 0
Condizioni stabile: Buono
Riscaldamento: Autonomo

Caratteristiche

Cantina: Si
Ascensore: Si

Dati inserzione

ID Offrocasa.com: 10912600
Data inserimento: 08/11/2025
Rif. Agenzia: CN140/22L2-2201-26-1730
Rif. Agenzia CN140/22L2-2201-26-1730

Domy Online S.r.l.

Via San Lorenzo 5/41 - Genova
010.8935187
Richiedi Info dal form:
Accetto l'Informativa Privacy


Domy Online S.r.l.

Via San Lorenzo 5/41 - Genova

Quadrilocale in Vendita a Cuneo, 76'200€, 65 m², con Box

Chiama
Contatta