Casa Semi Indipendente in Vendita a Montoggio, 9'000€, 115 m²

Locali: 6
Camere: 1
Piano: s
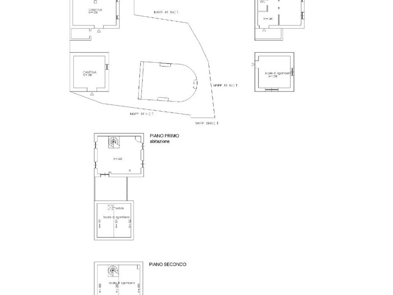
Complesso immobiliare terratetto composto da due corpi di fabbrica da terra a tetto , adiacenti ma non contigui, se non tramite un terrazzo posto tra i due manufatti, che mette un comunicazione il primo piano dei due stabili. Il bene comprende due cantine, una piccola legnaia, camera, servizio igienico, soggiorno con cucina e 3 locali di sgombero ed un terrazzo. Oltre a due terreni limitrofi. - Il Prezzo visualizzato è la Base d'Asta in quanto l’immobile è oggetto di esecuzione immobiliare venduto tramite Asta Giudiziaria. - L'immobile aggiudicato, viene venduto libero e sgombro da persone cose ed ipoteche nello stato di fatto e di diritto in cui si trova. - Non rappresentiamo il Tribunale, ma lavoriamo nell'esclusivo interesse del potenziale acquirente per garantire un acquisto sicuro. - I consulenti di ASTE ITALIA ti assisteranno in tutte le attività dell'iter giudiziario dalla visita dell'immobile fino alla consegna chiavi. - Contatta il nostro Servizio Clienti , i nostri operatori sono a disposizione per chiarire i molteplici dubbi per partecipare alle ASTE.

Condizioni economiche

Contratto: Vendita
Prezzo: 9'000€
Arredato: No

Informazioni principali

Tipologia: Casa Semi Indipendente
Città: Montoggio
Superficie: 115 m²
N° locali: 6
N° Camere: 1
Piano: s
Cucina: Abitabile

Efficenza energetica

Classe energetica: F
Anno di costruzione: 0
Condizioni stabile: Discreto

Caratteristiche

Cantina: Si

Dati inserzione

ID Offrocasa.com: 10912592
Data inserimento: 08/11/2025
Rif. Agenzia: GE490/21LU-2101-26-1400
Rif. Agenzia GE490/21LU-2101-26-1400

ASTE ITALIA

Via Serra 6 Int 7 - Genova (GE)
010.8935240
Richiedi Info dal form:
Accetto l'Informativa Privacy


ASTE ITALIA

Via Serra 6 Int 7 - Genova (GE)

Casa Semi Indipendente in Vendita a Montoggio, 9'000€, 115 m²

Chiama
Contatta