Monolocale in Vendita a San Bonifacio, zona Prova, 170'000€, 128 m², con Box

Locali: 1
Camere: 1
Piano: 1
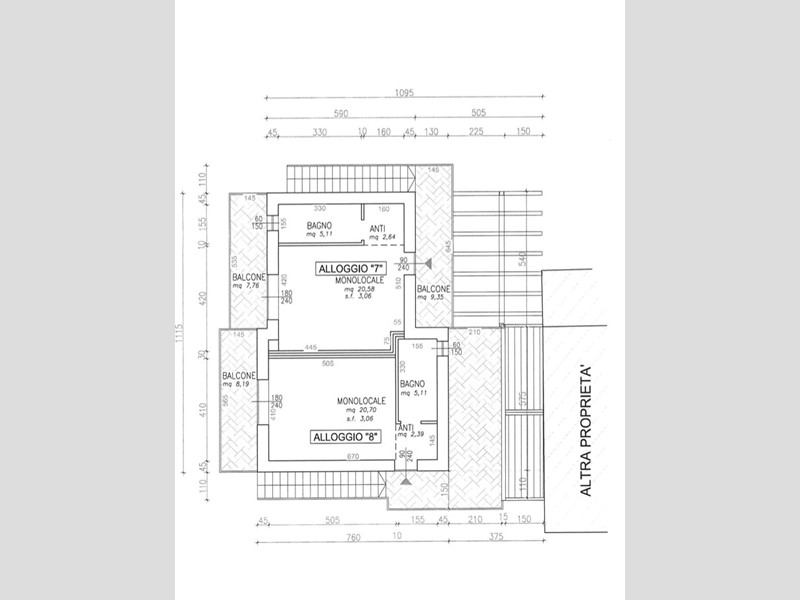
SAN BONIFACIO, LOCALITA' PROVA: disponibilità due monolocali con ampi balconi al piano primo e con corte esclusiva privata sul retro. Ingresso indipendente, salotto con angolo cottura open space, antibagno e bagno. Monolocale alloggio 7, 2 posti auto privati coperti con tettoia e monolocale alloggio 8 garage privato. (vedi planimetria). Nuova costruzione 2025. Predisposizione impianto fotovoltaico 3,5 kw. No gas, impianto a pompa di calore con climatizzatore. Consegna chiavi in mano febbraio/marzo 2026. Ottimo per investimento. Comodissimo e molto vicino ai principali servizi. Le immagini sono puramente indicative e non veritiere in quanto in fase di costruzione. Il gruppo che gestisce l'agenzia MyHome Immobiliare opera ormai da diversi anni sulle province di Vicenza e di Verona. Grazie alla nostra esperienza e preparazione siamo in grado di fornire servizi immobiliari a 360°. Il nostro team crede fortemente nell’etica professionale, e il nostro obbiettivo è quello di soddisfare le esigenze immobiliari con affidabilità, trasparenza e serietà. Sei alla ricerca della tua nuova casa o vuoi vendere la tua abitazione? Rivolgiti al nostro team di esperti. Ti aspettiamo nelle nostri sedi ad Arzignano (VI) in Via Trieste 20 e a San Bonifacio (VR) in Piazza Costituzione 31.

Condizioni economiche

Contratto: Vendita
Prezzo: 170'000€
Arredato: No
Spese condominiali: 10€

Informazioni principali

Tipologia: Monolocale
Città: San Bonifacio
Zona: Prova
Superficie: 128 m²
N° locali: 1
N° Camere: 1
Piano: 1
N° balconi: 2
Box: Si
Posto auto: Si
Cucina: Angolo cottura
Giardino: Si

Efficenza energetica

Classe energetica: A4
Ipe: 13.96 KWh/m2a
Anno di costruzione: 2025
Condizioni stabile: Nuovo

Dati inserzione

ID Offrocasa.com: 10911916
Data inserimento: 07/11/2025
Rif. Agenzia: DD099
Rif. Agenzia DD099

MyHome Immobiliare

Corso Giacomo Matteotti, 67/2 - Arzignano (VI)
0444.1322263
Richiedi Info dal form:
Accetto l'Informativa Privacy


Condividi

MyHome Immobiliare

Corso Giacomo Matteotti, 67/2 - Arzignano (VI)

Monolocale in Vendita a San Bonifacio, zona Prova, 170'000€, 128 m², con Box

Chiama
Contatta