Bilocale in Vendita a Aprilia, 119'000€, 50 m²

Locali: 2
Bagni: 1
Piano: Terra
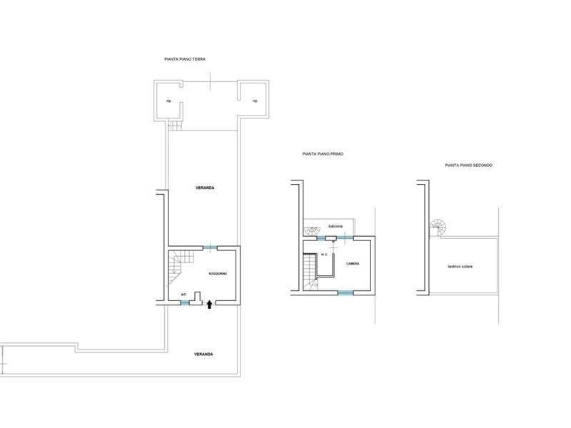
In vendita ad Aprilia, nel suggestivo contesto centrale di Via degli Aranci, si trova un delizioso appartamento ad uso abitativo con 2 locali e 1 bagno, perfetto per chi desidera vivere in un ambiente moderno e confortevole. Con una superficie di 50 mq disposta su due livelli, questo bilocale di recente costruzione offre un'entrata indipendente che conduce al piano terra, dove troverete un accogliente soggiorno, un pratico cucinino, una luminosa camera da letto e un bagno. L'appartamento vanta inoltre un balcone ideale per momenti di relax all'aria aperta, due ampie verande che offrono spazi aggiuntivi per vivere all'aperto, due ripostigli esterni per una maggiore comodità di stoccaggio, un lastrico solare per godere di una vista panoramica e di momenti di tranquillità, un impianto videocitofono per la sicurezza, la predisposizione per un impianto antifurto, tapparelle elettriche per un maggiore comfort, pannelli fotovoltaici e solari per un risparmio energetico significativo. Inoltre, c'è la possibilità di acquistare un box auto di 20 mq per parcheggiare comodamente la propria auto. Con classe energetica "A", questo appartamento rappresenta un'opportunità unica per chi cerca una soluzione abitativa moderna, funzionale ed ecologica. Non perdere l'occasione di vivere in un ambiente accogliente e all'avanguardia a breve distanza dalla stazione e da tutti i servizi essenziali. Contattaci per organizzare una visita e scoprire tutte le potenzialità di questa splendida proprietà.

Condizioni economiche

Contratto: Vendita
Prezzo: 119'000€
Arredato: No
Libero: Si

Informazioni principali

Tipologia: Bilocale
Città: Aprilia
Superficie: 50 m²
N° locali: 2
N° bagni: 1
Piano: Terra
Cucina: Cucinotto

Efficenza energetica

Classe energetica: 2015-A1
Ipe: 41.32 kwm2
Anno di costruzione: 0

Caratteristiche

Ascensore: Si
Videocitofono: Si

Dati inserzione

ID Offrocasa.com: 10911693
Data inserimento: 07/11/2025
Rif. Agenzia: Cod. rif 3272793VRG
Rif. Agenzia Cod. rif 3272793VRG

Professionecasa

via carducci 14/e - Aprilia (Latina)
06 9200689
Richiedi Info dal form:
Accetto l'Informativa Privacy


Condividi

Professionecasa

via carducci 14/e - Aprilia (Latina)

Bilocale in Vendita a Aprilia, 119'000€, 50 m²

Chiama
Contatta