Terreno edificabile in Vendita a Cardano al Campo, 275'000€, 927 m²

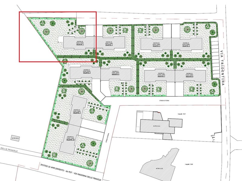
LOTTO EDIFICABILE IN CONTESTO ESCLUSIVO -T1 CARDANO AL CAMPO Inserito in una cornice di quiete e prestigio, in una posizione esclusiva e strategica per la vicinanza ai principali servizi, all’aeroporto di Milano Malpensa, ai rinomati laghi lombardi e comodamente collegata con la città di Milano, il lotto di terreno che proponiamo di 927 mq è ideale per la realizzazione di una villa unifamiliare. In questo lotto esiste un progetto architettonico approvato per realizzare una villa di circa 190mq oltre a portici e box doppio con possibilità di adattarlo alle proprie esigenze ed un team di professionisti specializzati può rendere concreto il tuo progetto! Il lotto è urbanisticamente pronto, già dotato di tutte le condizioni necessarie per poter essere edificato subito, senza ulteriori adempimenti urbanistici preliminari, predisposto per la costruzione della tua nuova villa. Disponiamo di altri lotti con metrature diversificate, per soddisfare ogni esigenza progettuale. Possibilità di acquisto di più lotti contigui. Contattaci per maggiori informazioni e per esplorare insieme le potenzialità di questi terreni unici. Prezzo € 275000,00

Condizioni economiche

Contratto: Vendita
Prezzo: 275'000€
Libero: Si

Informazioni principali

Tipologia: Terreno edificabile
Città: Cardano al Campo
Superficie: 927 m²

Efficenza energetica

Classe energetica:

Dati inserzione

ID Offrocasa.com: 10911371
Data inserimento: 07/11/2025
Rif. Agenzia: U13246
Rif. Agenzia U13246

Riga Immobiliare di Rosiello Vito Sas e C.

via Bergamo 11 - Gallarate (Varese)
0331786888
Richiedi Info dal form:
Accetto l'Informativa Privacy


Riga Immobiliare di Rosiello Vito Sas e C.

via Bergamo 11 - Gallarate (Varese)

Terreno edificabile in Vendita a Cardano al Campo, 275'000€, 927 m²

Chiama
Contatta