Trilocale in Vendita a Ceriale, 69'178€, 58 m²

Locali: 3
Camere: 1
Piano: 2
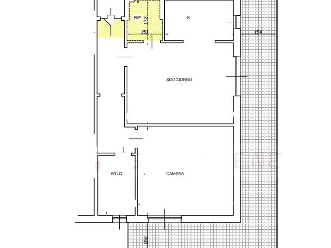
Appartamento a Ceriale (SV), Via Magnone 77/8, della superficie commerciale di 58,30 mq, per la piena proprietà. Appartamento composto da corridoio, soggiorno, cucinino, camera, bagno con doccia e balcone. L'immobile identificato con l'int.8, è posto al 2° piano (3° fuori terra) di un fabbricato denominato Palazzina 4 del Complesso Immobiliare Residenziale Ligure, composto da n. 6 palazzine ubicate in area collinare di Ceriale a circa 1,2 Km dal litorale. - Il Prezzo visualizzato è la Base d'Asta in quanto l’immobile è oggetto di esecuzione immobiliare venduto tramite Asta Giudiziaria. - L'immobile aggiudicato, viene venduto libero e sgombro da persone cose ed ipoteche nello stato di fatto e di diritto in cui si trova. - Non rappresentiamo il Tribunale, ma lavoriamo nell'esclusivo interesse del potenziale acquirente per garantire un acquisto sicuro. - I consulenti di ASTE ITALIA ti assisteranno in tutte le attività dell'iter giudiziario dalla visita dell'immobile fino alla consegna chiavi. - Contatta il nostro Servizio Clienti , i nostri operatori sono a disposizione per chiarire i molteplici dubbi per partecipare alle ASTE.

Condizioni economiche

Contratto: Vendita
Prezzo: 69'178€
Arredato: No

Informazioni principali

Tipologia: Trilocale
Città: Ceriale
Superficie: 58 m²
N° locali: 3
N° Camere: 1
Piano: 2
N° balconi: 1
Cucina: Cucinotto

Efficenza energetica

Classe energetica: G
Anno di costruzione: 0
Condizioni stabile: Buono
Riscaldamento: Autonomo

Dati inserzione

ID Offrocasa.com: 10911012
Data inserimento: 06/11/2025
Rif. Agenzia: SV73/25LU-2901-26-1100
Rif. Agenzia SV73/25LU-2901-26-1100

ASTE ITALIA

Via Serra 6 Int 7 - Genova (GE)
010.8935240
Richiedi Info dal form:
Accetto l'Informativa Privacy


ASTE ITALIA

Via Serra 6 Int 7 - Genova (GE)

Trilocale in Vendita a Ceriale, 69'178€, 58 m²

Chiama
Contatta