Quadrilocale in Vendita a Vedano al Lambro, 438'000€, 120 m², con Box

Locali: 4
Bagni: 2
Piano: 2°
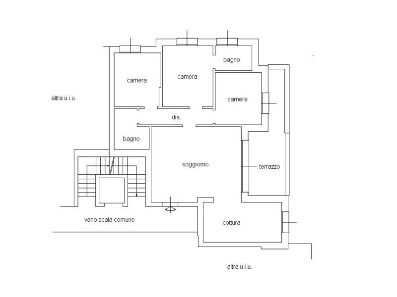
Vedano al Lambro, NUOVA COSTRUZIONE in classe A4. In elegante contesto realizzato utilizzando tecnologie di ultima generazione, come il riscaldamento a pavimento, ventilazione meccanica controllata con deumidificazione canalizzata che insieme ai serramenti in PVC doppio vetro contribuiscono il massimo confort e un elevato risparmio energetico Situato nelle immediate vicinanze del Parco di Monza, in una zona residenziale tranquilla e immersa nel verde, proponiamo all'interno della "Residenza Leonardo" un meraviglioso appartamento al secondo piano con ampio terrazzo loggiato panoramico. La soluzione è composta da: ingresso su soggiorno caratterizzato da grandi vetrate con accesso diretto al terrazzo che regala una splendida vista sul verde del parco, la cucina dedicata affaccia sulla zona living. Nella zona notte troviamo tre camere da letto e doppi servizi disimpegnati. Il nostro servizio di interior design vi accompagnerà nella scelta delle finiture, per personalizzare la vostra nuova casa e realizzare i vostri sogni. Completa la proprietà cantina e la possibilità di box singolo ? 25.000. PRONTA CONSEGNA Grimaldi si trova a Monza in Via Vittorio Emanuele II, 44 - www.grimaldimonza.org - YouTube: "GrimaldiMonza"- info@grimaldimonza.org - Tel. 039 9253140 - WhatsApp: 3516208262

Condizioni economiche

Contratto: Vendita
Prezzo: 438'000€
Arredato: No
Libero: Si

Informazioni principali

Tipologia: Quadrilocale
Città: Vedano al Lambro
Superficie: 120 m²
N° locali: 4
N° bagni: 2
Piano:
Box: Si
Cucina: Abitabile
Giardino: Comune

Efficenza energetica

Classe energetica: 2015-A4
Ipe: 3.51 kwm2
Climatizzatore: Si
Anno di costruzione: 2024
Riscaldamento: centralizzato

Caratteristiche

Cantina: Si
Ascensore: Si
Videocitofono: Si

Dati inserzione

ID Offrocasa.com: 10910904
Data inserimento: 06/11/2025
Rif. Agenzia: Cod. rif 3270216VRG
Rif. Agenzia Cod. rif 3270216VRG

Grimaldi Immobiliare

Via Vittorio Emanuele II 44 - Monza (Monza-Brianza)
039/9253140
Richiedi Info dal form:
Accetto l'Informativa Privacy


Condividi

Grimaldi Immobiliare

Via Vittorio Emanuele II 44 - Monza (Monza-Brianza)

Quadrilocale in Vendita a Vedano al Lambro, 438'000€, 120 m², con Box

Chiama
Contatta