Casa Indipendente in Vendita a Castel del Monte, 55'000€, 75 m²

Locali: 4
Bagni: 1
Camere: 3
Piano: Su più livelli
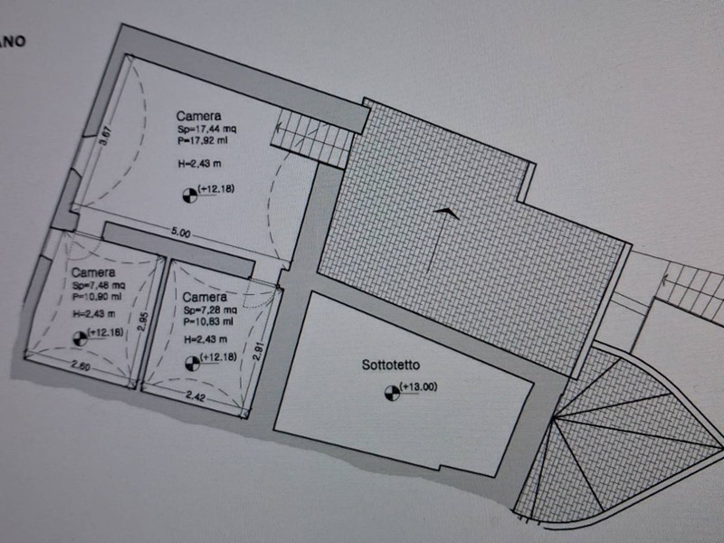
Rif. GRE768 - Castel del Monte:In uno dei "Borghi più belli d'Italia" a circa 40 km da L'Aquila, nel comprensorio del Parco Nazionale del Gran Sasso e Monti della Laga, proponiamo in vendita casa cielo terra di 75 mq, disposta su due livelli.Al primo piano veniamo accolti da un ingresso, cucina abitabile con ripostiglio, camera e bagno. Una comoda scala ci conduce al secondo piano dove troviamo un soggiorno, camera matrimoniale e cameretta.L'immobile, totalmente ristrutturato nel 2020, conserva le antiche volte a botte, dotato di infissi a taglio termico, riscaldamento con stufa e autoclave.La soluzione, totalmente arredata, è ideale per chi vuole trascorrere momenti in completo relax, nella zona più caratteristica del paese, con le sue numerose manifestazioni e con tutti i servizi che il Borgo offre.Devi vendere per acquistare? Chiedici una valutazione GRATUITA e senza impegno.

Condizioni economiche

Contratto: Vendita
Prezzo: 55'000€
Arredato: Arredato
Libero: Si

Informazioni principali

Tipologia: Casa Indipendente
Città: Castel del Monte
Superficie: 75 m²
N° locali: 4
N° bagni: 1
N° Camere: 3
Piano: Su più livelli

Efficenza energetica

Classe energetica:
Condizioni stabile: Buono
Riscaldamento: Autonomo

Dati inserzione

ID Offrocasa.com: 10910381
Data inserimento: 06/11/2025
Rif. Agenzia: GRE768
Rif. Agenzia GRE768

Grimaldi Immobiliare

Via Amiternum 2 - L'Aquila
3283164514
Richiedi Info dal form:
Accetto l'Informativa Privacy


Grimaldi Immobiliare

Via Amiternum 2 - L'Aquila

Casa Indipendente in Vendita a Castel del Monte, 55'000€, 75 m²

Chiama
Contatta