Terreno edificabile in Vendita a Assisi, 235'000€, 1000 m²

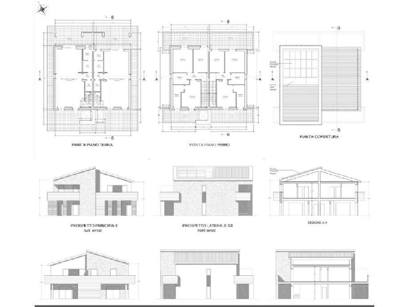
In posizione unica di Santa Maria degli Angeli, alle pendici di Assisi, disponiamo di terreno edificabile urbanizzato di 1.000 mq c.a. con possibilità di edificare villa singola o bifamiliare su 2 livelli per un totale di 290 mq fuori terra. Il prezzo è compreso del progetto approvato,bucalossi pagata, deposito strutturale depositato,spese tecniche fino ad oggi pagate. Si può presentare una variante al progetto andando ad inserire il piano interrato, piscina ed un possibile aumento di volume fuori terra. Zona con slendida vista su Assisi

Condizioni economiche

Contratto: Vendita
Prezzo: 235'000€
Libero: Si

Informazioni principali

Tipologia: Terreno edificabile
Città: Assisi
Superficie: 1000 m²

Efficenza energetica

Classe energetica:

Dati inserzione

ID Offrocasa.com: 10908613
Data inserimento: 04/11/2025
Rif. Agenzia: 235lottoSMA
Rif. Agenzia 235lottoSMA

ADV IMMOBILIARE - Daniele Varani

Via San Bernardino da Siena,31 - Assisi (Perugia)
Richiedi Info dal form:
Accetto l'Informativa Privacy


ADV IMMOBILIARE - Daniele Varani

Via San Bernardino da Siena,31 - Assisi (Perugia)

Terreno edificabile in Vendita a Assisi, 235'000€, 1000 m²

Contatta