Villetta a schiera in Vendita a Pojana Maggiore, 139'000€, 80 m²

Locali: 3
Bagni: 1
Piano: Su più livelli
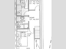
In zona tranquilla di Pojana, proponiamo casetta a schiera disposta su due livelli, funzionale e comoda ai principali servizi. Al piano terra si trova un soggiorno con cucina open space, pratico e ben distribuito. Al primo piano sono presenti due camere da letto, un bagno e un ripostiglio. All'esterno è presente un piccolo scoperto privato. L'immobile si trova in contesto tranquillo e facilmente accessibile. Una soluzione semplice e funzionale, adatta a chi cerca un'abitazione indipendente di dimensioni contenute in una zona comoda e ben servita. A tutela della privacy l'indirizzo indicato non corrisponde all'esatta posizione dell'immobile. Per maggiori informazioni chiamare la Ns. sede Professionecasa di Noventa Vicentina in Via Matteotti n° 113, al numero 0444-887063. Rif. P151

Condizioni economiche

Contratto: Vendita
Prezzo: 139'000€

Informazioni principali

Tipologia: Villetta a schiera
Città: Pojana Maggiore
Superficie: 80 m²
N° locali: 3
N° bagni: 1
Piano: Su più livelli

Efficenza energetica

Classe energetica:
Anno di costruzione: 0

Dati inserzione

ID Offrocasa.com: 10907266
Data inserimento: 31/10/2025
Rif. Agenzia: Rif P151VRG
Rif. Agenzia Rif P151VRG

Professionecasa

Via Matteotti 113 - Noventa Vicentina (Vicenza)
0444/887063
Richiedi Info dal form:
Accetto l'Informativa Privacy


Professionecasa

Via Matteotti 113 - Noventa Vicentina (Vicenza)

Villetta a schiera in Vendita a Pojana Maggiore, 139'000€, 80 m²

Chiama
Contatta