Villa bifamiliare in Vendita a Avigliana, 590'000€, 559 m²

Locali: 10
Bagni: 3
Camere: 3
Piano: Su più livelli
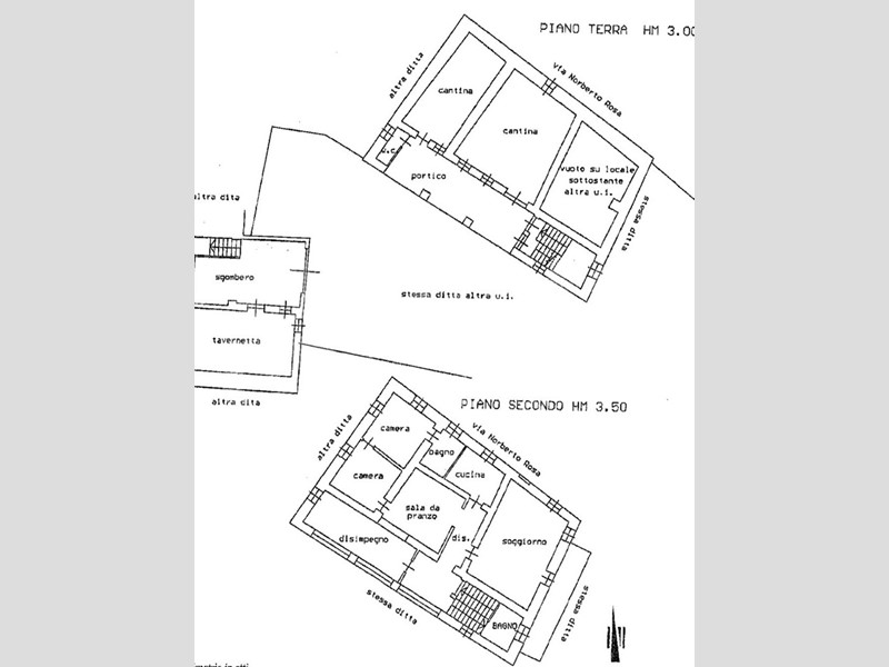
La Gabetti di Rivoli, propone elegante dimora storica del 1300 situata nel prestigioso centro medievale di Avigliana, a cinque minuti a piedi dalla stazione ferroviaria e comoda a tutti i servizi. La proprietà esclusiva è circondata da paesaggi incantevoli ed offre meravigliosi spazi esterni. La villa patronale oggetto di parziale ristrutturazione si sviluppa su tre livelli ed accoglie al piano terra un ampio porticato, taverna, locale di sgombero, vano scala e due cantine. Al piano primo troviamo il soggiorno con ampie vetrate, cucina, tre camere, bagno, al piano secondo ampio soggiorno con vetrate, cucina, tre camere e doppi servizi. Balcone. Concludono la proprietà ampia dependance da ristrutturare e recuperabile ai fini abitativi, giardino e cortile privato. La posizione è strategica e tutte le meravigliose destinazioni della provincia torinese sono a breve distanza. L'intera proprietà può essere trasformata in bifamiliare o in struttura ricettiva. La presente descrizione ha valore puramente indicativo e non costituisce elemento contrattuale ne presupposto contrattuale. Tutte le misure eventualmente riportate devono considerarsi indicative.

Condizioni economiche

Contratto: Vendita
Prezzo: 590'000€
Arredato: No
Libero: Si

Informazioni principali

Tipologia: Villa bifamiliare
Città: Avigliana
Superficie: 559 m²
N° locali: 10
N° bagni: 3
N° Camere: 3
Piano: Su più livelli
Cucina: Abitabile
Giardino: Comune

Efficenza energetica

Classe energetica:
Anno di costruzione: 0

Caratteristiche

Cantina: Si

Dati inserzione

ID Offrocasa.com: 10907228
Data inserimento: 31/10/2025
Rif. Agenzia: Cod. rif 3105535VRG
Rif. Agenzia Cod. rif 3105535VRG

Gabetti

corso Susa 50 - Rivoli (Torino)
011/9566022
Richiedi Info dal form:
Accetto l'Informativa Privacy


Gabetti

corso Susa 50 - Rivoli (Torino)

Villa bifamiliare in Vendita a Avigliana, 590'000€, 559 m²

Chiama
Contatta