Quadrilocale in Vendita a Roma, 299'000€, 140 m², arredato

Locali: 4
Bagni: 2
Camere: 3
Piano: 4°
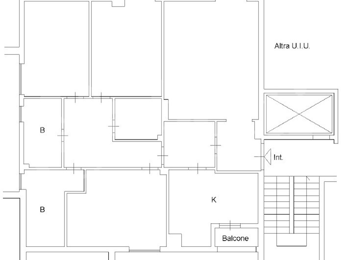
L'agenzia immobiliare GABETTI ROMA BRAVETTA è lieta di proporre in vendita un ampio quadrilocale di 140 mq posto al quarto piano di una palazzina di fine anni 80' in cortina, di soli 4 piani, con ascensore che si ferma al terzo poi ci sono 10 gradini per raggiungere l'appartamento, e così composto: Ingresso, ampio Salone, Cucina abitabile con balconcino, tre Camere da letto, due Bagni con finestra, e ripostiglio. Completano l'appartamento due posti auto scoperti ed una cantina. L'immobile ha subito diverse ristrutturazioni, la più recente 5 anni fa con il rifacimento dei bagni e dell'impianto elettrico. Le due camere da letto principali e il salone sono provviste di aria condizionata. La doppia tripla esposizione EST/OVEST/SUD rende l'appartamento sempre luminoso ed areato. Dal Condominio è possibile accedere direttamente al "Parco Pino Lecce" passando per un cancello pedonale interno di uso esclusivo. Il condominio è dotato di servizio di portineria e le aree verdi presenti rendono il contesto gradevole e signorile. La zona mette a disposizione tutti i primari servizi e comodità per le famiglie. Almeno due Supermercati nel raggio di 100 e 500 mt a piedi A soli 3 minuti dalla Stazione Magliana (FL1) A pochi minuti dal G.R.A. Per ulteriori informazioni o per fissare un appuntamento si prega di contattare i seguenti numeri: 06.27.53.829-392.08.76.185. Questa descrizione ha valore puramente indicativo e non costituisce elemento contrattuale.

Condizioni economiche

Contratto: Vendita
Prezzo: 299'000€
Arredato: Si
Spese condominiali: 160€

Informazioni principali

Tipologia: Quadrilocale
Città: Roma
Superficie: 140 m²
N° locali: 4
N° bagni: 2
N° Camere: 3
Piano:
Box: Doppio
Cucina: Abitabile
Giardino: Comune

Efficenza energetica

Classe energetica: 2015-G
Ipe: 190.00 kwm2
Climatizzatore: Si
Anno di costruzione: 1987
Riscaldamento: centralizzato

Caratteristiche

Cantina: Si
Ascensore: Si
Videocitofono: Si

Dati inserzione

ID Offrocasa.com: 10907213
Data inserimento: 31/10/2025
Rif. Agenzia: Cod. rif 3271373VRG
Rif. Agenzia Cod. rif 3271373VRG

Gabetti

Via dei Feltreschi 21 - Roma
06.47549473
Richiedi Info dal form:
Accetto l'Informativa Privacy


Condividi

Gabetti

Via dei Feltreschi 21 - Roma

Quadrilocale in Vendita a Roma, 299'000€, 140 m², arredato

Chiama
Contatta