Casa Semi Indipendente in Vendita a Ravenna, 350'000€, 130 m²

Locali: 5
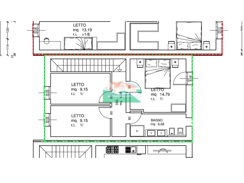
Camere: 3
Piano: t
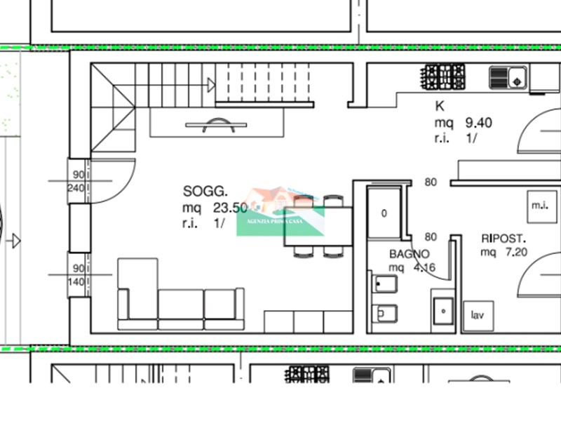
ZONA PORTO FUORI- NUOVA COSTRUZIONE DI VILLETTA A SCHIERA in classe A4 su due livelli (piano terra e primo piano), pannelli fotovoltaici, predisposizione per aria condizionata, giardino privato fronte e retro. All'interno si compone da al piano terra: ampia sala con cucina abitabile, bagno, lavanderia/ ripostiglio; al primo piano: tre camere da letto (una matrimoniale e due singole) e un bagno finestrato. Possibilita di personalizzazione degli interni.

Condizioni economiche

Contratto: Vendita
Prezzo: 350'000€
Arredato: No

Informazioni principali

Tipologia: Casa Semi Indipendente
Città: Ravenna
Vicinanze: Centrale
Superficie: 130 m²
N° locali: 5
N° Camere: 3
Piano: t
Posto auto: Si
Cucina: Abitabile
Giardino: Si

Efficenza energetica

Classe energetica: A4
Anno di costruzione: 0
Condizioni stabile: Nuovo
Riscaldamento: Autonomo

Dati inserzione

ID Offrocasa.com: 10906711
Data inserimento: 30/10/2025
Rif. Agenzia: RA17VV8-1-1
Rif. Agenzia RA17VV8-1-1

Ballardini Luca D.I

Via Romea 147 - Ravenna
333.5017720
Richiedi Info dal form:
Accetto l'Informativa Privacy


Ballardini Luca D.I

Via Romea 147 - Ravenna

Casa Semi Indipendente in Vendita a Ravenna, 350'000€, 130 m²

Chiama
Contatta