Casa Indipendente in Vendita a Mombello Monferrato, 58'827€, 338 m²

Locali: 10+
Camere: 5
Piano: s
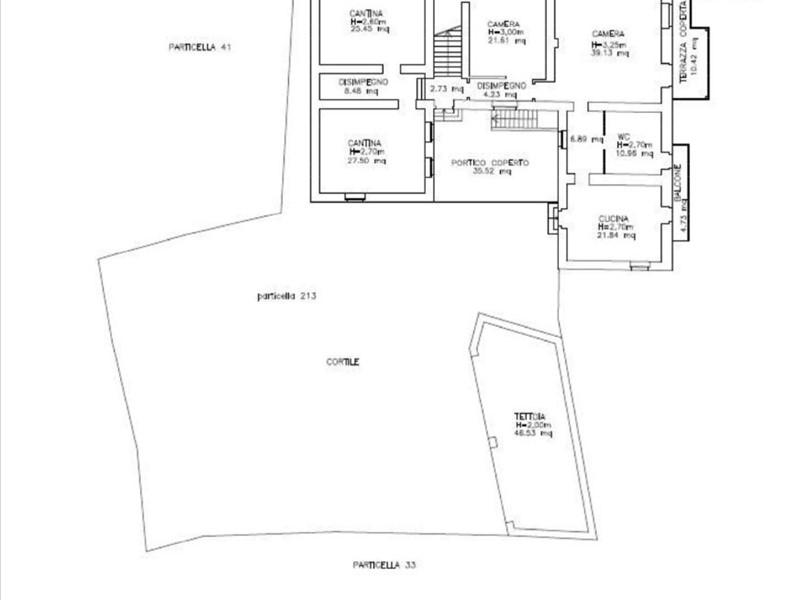
Abitazione ad uso civile di circa 552 mq complessivi, su due piani oltre piano sottostrada con circa 8320 mq di area cortilizia e, a parte, altra costruzione di 68 mq circa di vani fatiscenti (ante 1967). L'abitazione principale è composta da dehor, disimpegno, cucina, servizio, 2 camere, 2 magazzini a p.t., 3 camere oltre servizi a primo piano, fienile da ristrutturare e sottotetto, balcone e terrazza coperta lungo lato sud; ampio magazzino a lato nord ovest, n.3 cantine a piano sottostrada lato sud. - Il Prezzo visualizzato è la Base d'Asta in quanto l’immobile è oggetto di esecuzione immobiliare venduto tramite Asta Giudiziaria. - L'immobile aggiudicato, viene venduto libero e sgombro da persone cose ed ipoteche nello stato di fatto e di diritto in cui si trova. - Non rappresentiamo il Tribunale, ma lavoriamo nell'esclusivo interesse del potenziale acquirente per garantire un acquisto sicuro. - I consulenti di ASTE ITALIA ti assisteranno in tutte le attività dell'iter giudiziario dalla visita dell'immobile fino alla consegna chiavi. - Contatta il nostro Servizio Clienti , i nostri operatori sono a disposizione per chiarire i molteplici dubbi per partecipare alle ASTE.

Condizioni economiche

Contratto: Vendita
Prezzo: 58'827€
Arredato: No

Informazioni principali

Tipologia: Casa Indipendente
Città: Mombello Monferrato
Superficie: 338 m²
N° locali: 10+
N° Camere: 5
Piano: s
N° balconi: 3
Cucina: Abitabile
Giardino: Si

Efficenza energetica

Classe energetica: G
Anno di costruzione: 0
Condizioni stabile: Buono
Riscaldamento: Autonomo

Caratteristiche

Cantina: Si

Dati inserzione

ID Offrocasa.com: 10903943
Data inserimento: 25/10/2025
Rif. Agenzia: VC123/23LU-2210-25-1500
Rif. Agenzia VC123/23LU-2210-25-1500

Domy Online S.r.l.

Via San Lorenzo 5/41 - Genova
010.8935187
Richiedi Info dal form:
Accetto l'Informativa Privacy


Domy Online S.r.l.

Via San Lorenzo 5/41 - Genova

Casa Indipendente in Vendita a Mombello Monferrato, 58'827€, 338 m²

Chiama
Contatta