Quadrilocale in Vendita a San Gimignano, 230'000€, 83 m²

Locali: 4
Bagni: 1
Camere: 2
Piano: 1°
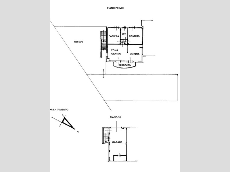
Rif. SG154 - San Gimignano - Badia a Elmi - In contesto di recente realizzazione, appartamento di 83 mq catastali al primo piano con ingresso indipendente. Internamente è composto da ampio ingresso soggiorno con camino e angolo cottura, due camera matrimoniali, bagno, balcone oltre giardino al piano terra di circa 60 mq e garage. Disponibilità immediata. Ape F - Ipe 102,5 kWh/mq*anno - ? 230.000 Vuoi acquistare o vendere casa? chiamaci allo 0577 070288. Visita il nostro sito Toscanaestates.it

Condizioni economiche

Contratto: Vendita
Prezzo: 230'000€
Arredato: No
Libero: Si

Informazioni principali

Tipologia: Quadrilocale
Città: San Gimignano
Superficie: 83 m²
N° locali: 4
N° bagni: 1
N° Camere: 2
Piano:
Box: Singolo
Cucina: Angolo Cottura
Giardino: Privato

Efficenza energetica

Classe energetica: 2015-F
Ipe: 102.50 kwm2
Anno di costruzione: 2005
Riscaldamento: autonomo

Dati inserzione

ID Offrocasa.com: 10903796
Data inserimento: 25/10/2025
Rif. Agenzia: Cod. rif 3270205VRG
Rif. Agenzia Cod. rif 3270205VRG

Gabetti

via Senese 87 - Poggibonsi (Siena)
0577/070288
Richiedi Info dal form:
Accetto l'Informativa Privacy


Condividi

Gabetti

via Senese 87 - Poggibonsi (Siena)

Quadrilocale in Vendita a San Gimignano, 230'000€, 83 m²

Chiama
Contatta