Trilocale in Vendita a Bologna, 340'000€, 72 m²

Locali: 3
Bagni: 1
Camere: 2
Piano: 1°
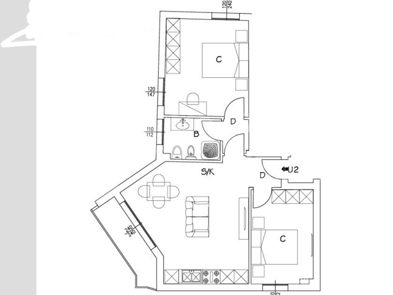
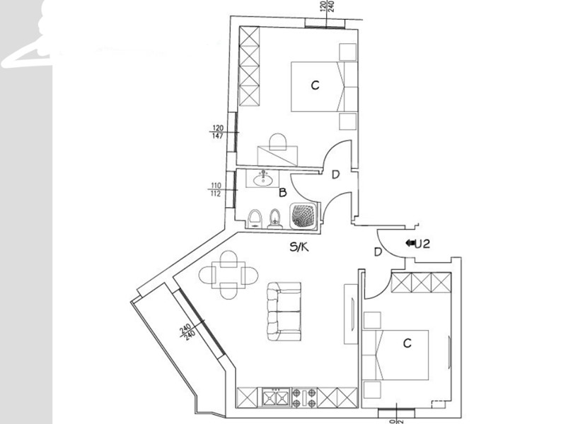
Bologna ( Zona Toscana) In contesto elegante e immerso nel verde proponiamo in de, proponiamo due appartamenti al primo piano in stabile di tre piani in buone condizioni. Entrambi gli immobili saranno ristrutturati a nuovo. Appartamento trilocale composto da: ingresso su disimpegno, zona giorno con angolo cottura e accesso al balcone, due camere da letto e bagno. RIF APP2.UC2 in vendita ad ?340.000 Ape in fase di rilascio. Per maggiori informazioni Antonio 3665008225

Condizioni economiche

Contratto: Vendita
Prezzo: 340'000€
Arredato: No

Informazioni principali

Tipologia: Trilocale
Città: Bologna
Superficie: 72 m²
N° locali: 3
N° bagni: 1
N° Camere: 2
Piano:
Cucina: Angolo Cottura
Giardino: Comune

Efficenza energetica

Classe energetica:
Anno di costruzione: 0
Riscaldamento: centralizzato

Caratteristiche

Cantina: Si

Dati inserzione

ID Offrocasa.com: 10903696
Data inserimento: 25/10/2025
Rif. Agenzia: APP2.UC2VRG
Rif. Agenzia APP2.UC2VRG

Gabetti

via Andrea Costa 226/E - Bologna
051/6153011
Richiedi Info dal form:
Accetto l'Informativa Privacy


Gabetti

via Andrea Costa 226/E - Bologna

Trilocale in Vendita a Bologna, 340'000€, 72 m²

Chiama
Contatta