Trilocale in Vendita a Milano, 580'000€, 90 m², arredato

Locali: 3
Bagni: 1
Camere: 2
Piano: 1°
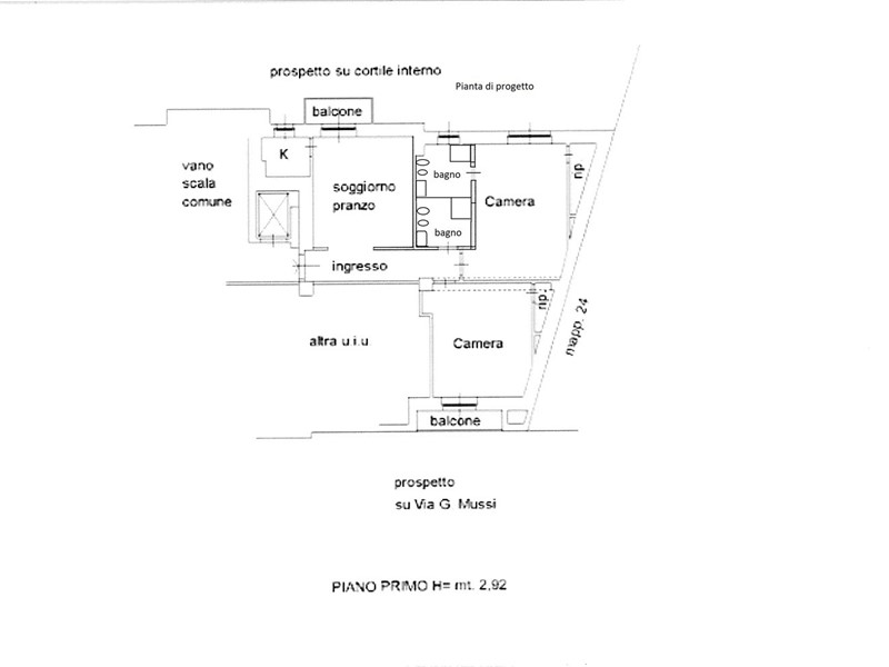
In Via Mussi, nelle immediate adiacenze di Corso Sempione e la pittoresca Via Piero della Francesca, sito al primo piano di uno stabile ben curato degli anni '60, proponiamo un luminoso trilocale così composto: l'ingresso ci accoglie direttamente sul soggiorno con balcone che affaccia sull'interno, un cucinotto completa la zona giorno. Un disimpegno ci conduce nella zona notte, con un bagno finestrato (CON POSSIBILITA' DI CREARNE UN SECONDO) e due grandi camere matrimoniali, entrambe con ripostiglio, di cui una con balcone che affaccia su Via Mussi. La soluzione si presenta in condizioni originali, ma in un buono stato conservativo, con una pavimentazione omogenea in piastrelle, ad eccezione per una camera con parquet dell'epoca, aria condizionata e riscaldamento centralizzato. Completa la proprietà una cantina di pertinenza. L'ubicazione strategica dell'immobile consente di usufruire di tutti i servizi essenziali, dagli esercizi commerciali ai mezzi pubblici, facilitando la vita quotidiana degli abitanti. La zona è ben servita e offre ottime opportunità di svago e cultura, grazie alla vicinanza a parchi, ristoranti e spazi ricreativi.

Condizioni economiche

Contratto: Vendita
Prezzo: 580'000€
Arredato: Si
Spese condominiali: 250€
Libero: Si

Informazioni principali

Tipologia: Trilocale
Città: Milano
Superficie: 90 m²
N° locali: 3
N° bagni: 1
N° Camere: 2
Piano:
Cucina: Cucinotto

Efficenza energetica

Classe energetica: 2015-E
Ipe: 94.25 kwm2
Climatizzatore: Si
Anno di costruzione: 1960
Riscaldamento: centralizzato

Caratteristiche

Cantina: Si
Ascensore: Si
Videocitofono: Si

Dati inserzione

ID Offrocasa.com: 10903139
Data inserimento: 24/10/2025
Rif. Agenzia: Cod. rif 3269859VRG
Rif. Agenzia Cod. rif 3269859VRG

Gabetti

via Piero della Francesca 5 - Milano
02/34592740
Richiedi Info dal form:
Accetto l'Informativa Privacy


Gabetti

via Piero della Francesca 5 - Milano

Trilocale in Vendita a Milano, 580'000€, 90 m², arredato

Chiama
Contatta