Villa in Vendita a Parabiago, 570'000€, 155 m²

Locali: 5
Bagni: 2
Camere: 4
Piano: Piano Terra
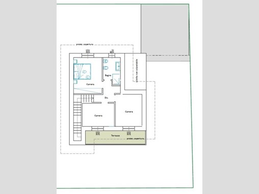
VILLE IRIS è una nuova realizzazione posizionata in una delle zone residenziali più belle e richieste di Parabiago identificata come Ravello-oltre ferrovia. L'intervento vede la realizzazione di sei ville singole, suddivise in due lotti da tre unità di varie metrature, tutte dallo stile moderno ed essenziale, indipendente una dalle altre. Le abitazioni saranno in CLASSE ENERGETICA A, dotate delle tecnologie costruttive di ultima generazione in tema di risparmio energetico. Ogni villa sarà disposta su due piani, terra e primo, con grandi giardini, porticati e terrazzi al piano primo, oltre box doppi. Ogni abitazione è da personalizzare nella scelte delle finiture quali pavimenti, rivestimenti e porte interne.\n\nVILLA 3 - and euro; 570.000. Villa di 155 mq, Giardino di 220 mq, Porticati di 26 mq e Terrazzo di 11 mq. Abitazione così suddivisa: piano terra ben 80 mq con ingresso su ambia zona living, cucina abitabile o aperta a preferenza del cliente servita da porticato, disimpegno, camera matrimoniale e bagno; piano primo di 75 mq con camera matrimoniale, camera doppia servita da terrazzo, camera singola e bagno. Il giardino di 220 mq circonda i quattro lati della casa. Il box è doppio in larghezza. - Maggiori Dettagli: Porta blindata, Cucina Abitabile

Condizioni economiche

Contratto: Vendita
Prezzo: 570'000€

Informazioni principali

Tipologia: Villa
Città: Parabiago
Superficie: 155 m²
N° locali: 5
N° bagni: 2
N° Camere: 4
Piano: Piano Terra
Box: Doppio
Posto auto: Box
Cucina: Abitabile
Giardino: Privato

Efficenza energetica

Classe energetica: A4
Climatizzatore: Predisposizione impianto
Anno di costruzione: 2025
Condizioni stabile: nuovo
Ristrutturato: Nuova Costruzione
Riscaldamento: Autonomo

Caratteristiche

Videocitofono: Si

Dati inserzione

ID Offrocasa.com: 10902635
Data inserimento: 24/10/2025
Rif. Agenzia: villa 3
Rif. Agenzia villa 3

Royal Immobiliare

Piazza della Vittoria, 16 - Parabiago (Milano)
3458817794
Richiedi Info dal form:
Accetto l'Informativa Privacy


Royal Immobiliare

Piazza della Vittoria, 16 - Parabiago (Milano)

Villa in Vendita a Parabiago, 570'000€, 155 m²

Chiama
Contatta