Appartamento in Vendita a Roma, 769'000€, 237 m²

Bagni: 3
Camere: 3
Piano: 3°
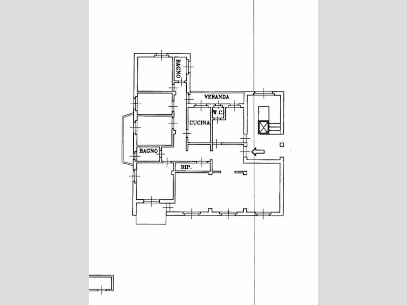
Ampio appartamento con terrazzo, cantina e box auto. Navigatori, in via Cristoforo Colombo, all'interno di uno stabile signorile in cortina con servizio di portineria, proponiamo la vendita di un ampio appartamento posto al terzo piano, ideale per chi desidera vivere in una zona centrale e ottimamente collegata con tutte le principali aree della città. La posizione è strategica in quanto si trova nel cuore di Parco Scott, a pochi passi sia dal quartiere San Paolo che dal quartiere Garbatella e con il Parco della Caffarella raggiungibile in pochi minuti a piedi. L'immobile, caratterizzato da una pianta ampia e funzionale, è composto da doppio ingresso, salone triplo, studio, cucina abitabile, ripostiglio, tre camere da letto, una cameretta, tre bagni, un terrazzo, un balcone e una veranda. Gli ambienti risultano particolarmente luminosi, grazie alla favorevole esposizione e all'ampia superficie finestrata. L'appartamento è da ristrutturare, offrendo così l'opportunità di personalizzare gli spazi secondo le proprie esigenze abitative o progettuali, inoltre, il doppio ingresso permette di destinare una parte della casa a studio professionale o di frazionare l'immobile in due unità indipendenti. Completano la proprietà una cantina ed un box auto. Soluzione ideale per famiglie numerose o per chi è alla ricerca di una residenza di rappresentanza in una delle zone più ricercate del quadrante sud della capitale. Classe energetica G. Per maggiori informazioni o per fissare un appuntamento di visita, siamo a vostra disposizione presso l'agenzia Grimaldi Roma Serafico al numero 06.81150218.

Condizioni economiche

Contratto: Vendita
Prezzo: 769'000€
Arredato: No
Spese condominiali: 150€
Libero: Si

Informazioni principali

Tipologia: Appartamento
Città: Roma
Superficie: 237 m²
N° bagni: 3
N° Camere: 3
Piano:
Box: Singolo
Cucina: Abitabile

Efficenza energetica

Classe energetica: 2015-G
Ipe: 175.00 kwm2
Anno di costruzione: 1958
Riscaldamento: centralizzato

Caratteristiche

Cantina: Si
Ascensore: Si

Dati inserzione

ID Offrocasa.com: 10902249
Data inserimento: 23/10/2025
Rif. Agenzia: VS33/25VRG
Rif. Agenzia VS33/25VRG

Soluzioni Immobiliari srl

Via Alessio Baldovinetti 97 - Roma
0681150214
Richiedi Info dal form:
Accetto l'Informativa Privacy


Soluzioni Immobiliari srl

Via Alessio Baldovinetti 97 - Roma

Appartamento in Vendita a Roma, 769'000€, 237 m²

Chiama
Contatta