Capannone in Vendita a Fano, 285'000€, 470 m²

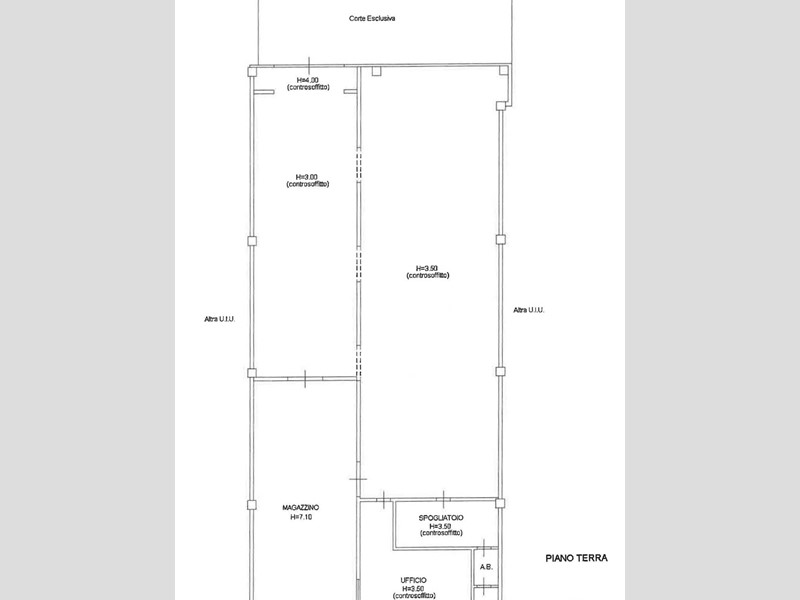
Fano - zona artigianale periferica - Ag. La Pesarese propone in vendita capannone artigianale a reddito, scadenza contratto Settembre 2026. L'immobile dispone di entrata carrabile e pedonale, area ufficio, spogliatoio, bagno, area magazzino ed area produttiva controsoffittata a H 3.00 e H 3.50 suddivisa in due diversi ambienti riscaldati. Completa la proprietà scoperto privato intercluso. Ape cl. D Maggiori informazioni contattare Francesco whts 346/7480725 - info@lapesarese.it.

Condizioni economiche

Contratto: Vendita
Prezzo: 285'000€
Libero: Si

Informazioni principali

Tipologia: Capannone
Città: Fano
Superficie: 470 m²

Efficenza energetica

Classe energetica: D

Dati inserzione

ID Offrocasa.com: 10901375
Data inserimento: 22/10/2025
Rif. Agenzia: VF001305
Rif. Agenzia VF001305

Zampetti Francesco II

V.le XII Settembre 44 - Fano (Pesaro e Urbino)
0721830602
Richiedi Info dal form:
Accetto l'Informativa Privacy


Zampetti Francesco II

V.le XII Settembre 44 - Fano (Pesaro e Urbino)

Capannone in Vendita a Fano, 285'000€, 470 m²

Chiama
Contatta