Trilocale in Vendita a San Benedetto del Tronto, 250'000€, 67 m²

Locali: 3
Bagni: 1
Camere: 2
Piano: Soppalco
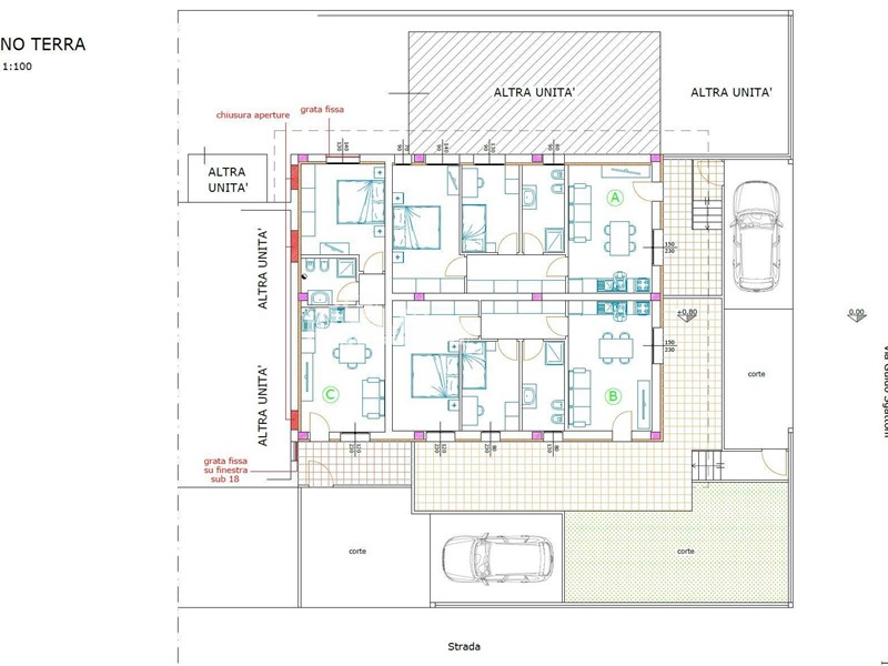
L'agenzia Re Casa Immobiliare propone in vendita appartamento di nuova ristrutturazione, in piccolissimo complesso residenziale composto da un unico piano sito in Via Sgattoni n. 9 in Porto D'Ascoli. Appartamento 67 mq al piano terra con ingresso autonomo. Ingresso su soggiorno con angolo cottura, due camere di cui una matrimoniale ed una singola, un bagno con finestra, corte esterna di mq 57 intermente pavimentata, giardino di mq 44. Posto auto scoperto di mq 17. Collocato all'interno di piccolo fabbricato di 3 appartamenti, su un unico livello. Nessun spesa condominiale. Immobile indicato è la unità B. Esposizione sud - ovest. Classe energetica prevista A4. Internamente l'immobile sarà rifinito con: pavimentazione in gres porcellanato, infissi in pvc con doppio vetro a taglio termico secondo le ultime normative relative all'isolamento termo acustico, bagno con sanitari sospesi, tapparelle elettriche, impianto di riscaldamento a pavimento, predisposizione impianto di raffrescamento, portone di ingresso blindato, video citofono. Possibilità di personalizzione delle finiture con scelta di materiali extra capitolato, con differenza dei costi a seconda dei materiali utilizzati. Inizio lavori previsto per novembre 2025 e ultimazione lavori prevista in 6 mesi dalla stipula del preliminare di compravendita. Possibilità di usufruire delle detrazioni inerenti la ristrutturazione nella percentuale del 50% in caso di acquisto come prima casa e del 36% in caso di acquisto come seconda casa. La somma imponibile su cui poter calcolare le detrazioni è di Euro 96.000,00. Ottima soluzione per chi ama la tranquillità, con servizi tutti facilmente raggiungibili, a pochi passi dal Centro Commerciale La Fontana.

Condizioni economiche

Contratto: Vendita
Prezzo: 250'000€
Arredato: Non arredato
Libero: Si

Informazioni principali

Tipologia: Trilocale
Città: San Benedetto del Tronto
Superficie: 67 m²
N° locali: 3
N° bagni: 1
N° Camere: 2
Piano: Soppalco
Giardino: Privato
Esposizione: Sud-Ovest

Efficenza energetica

Classe energetica: A4
Ipe: 52,00 kwh_m2
Anno di costruzione: 2025
Riscaldamento: Autonomo

Dati inserzione

ID Offrocasa.com: 10900351
Data inserimento: 21/10/2025
Rif. Agenzia: 9643
Rif. Agenzia 9643

Re Casa Immobiliare

Via San Francesco D'Assisi n. 13 b/c - San Benedetto del Tronto (Ascoli Piceno)
0735365467
Richiedi Info dal form:
Accetto l'Informativa Privacy


Condividi

Re Casa Immobiliare

Via San Francesco D'Assisi n. 13 b/c - San Benedetto del Tronto (Ascoli Piceno)

Trilocale in Vendita a San Benedetto del Tronto, 250'000€, 67 m²

Chiama
Contatta