Quadrilocale in Vendita a Roma, 179'000€, 120 m²

Locali: 4
Piano: 1°
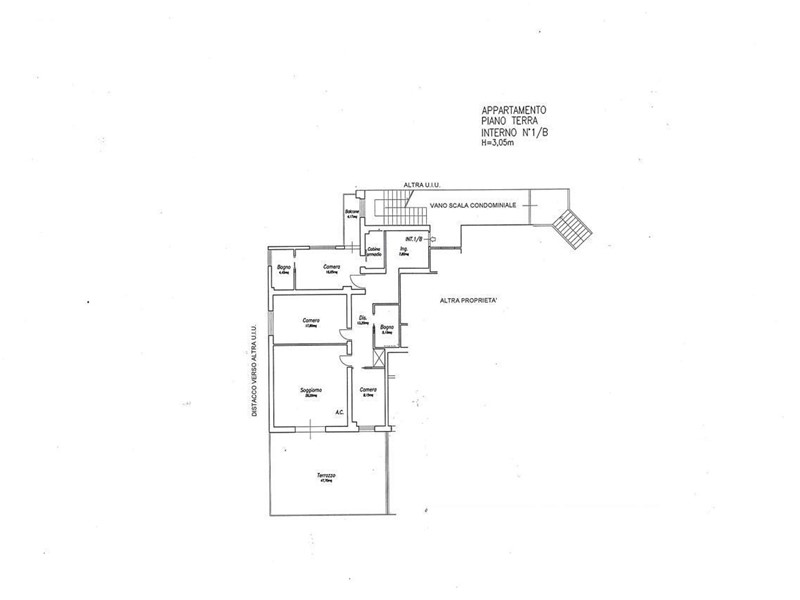
**Appartamento in Vendita a Roma - Ottima Posizione! ** Scopri questo splendido appartamento di 130 mq situato in una posizione strategica tra Via Anagnina e Via Tuscolana, a pochi passi dal Ponte Linari. La zona è ben collegata con il centro di Roma e i meravigliosi Castelli Romani, rendendolo ideale per chi cerca comodità e accessibilità. Il palazzo è stato recentemente ristrutturato e l'appartamento si trova al piano primo, con accesso da una piccola rampa di scale esterna. L'immobile presenta un ampio ingresso che conduce a un luminoso salone con angolo cottura e con accesso diretto ad uno dei punti forti dell'appartamento, il terrazzo panoramico di 50 mq, ideale per cene estive o semplicemente per godere della vista, un bagno, 3 camere di vario taglio, tra cui una camera da letto con bagno interno, cabina armadio e accesso diretto ad un balcone, perfetto per momenti di relax all'aria aperta, una camera di media grandezza ed una cameretta, divisi da un corridoio per ottimizzare gli spazi. La proprietà è completamente da ristrutturare, con la possibilità di personalizzare la planimetria secondo le proprie esigenze. Parte della demolizione e smaltimento è già stata effettuata, facilitando così il lavoro di ristrutturazione. Il terrazzo di pertinenza è stato già ristrutturato con rifacimento della pavimentazione, ringhiere di divisione e grondaie. La zona inoltre è adiacente a vari centri commerciali, supermercati e scuole, alcune raggiungibili anche a piedi, ideale per facilitare le famiglie con i bambini o i ragazzi. Situato a soli 3 km dal GRA e a 4 km dal Policlinico e dall'università Tor Vergata, con la fermata della metro e il capolinea autobus "Anagnina" a 4,5 km. Questo appartamento rappresenta un'ottima opportunità per chi cerca un investimento in una zona in forte sviluppo. Non perdere l'occasione di trasformare questo spazio in un'accogliente casa!

Condizioni economiche

Contratto: Vendita
Prezzo: 179'000€

Informazioni principali

Tipologia: Quadrilocale
Città: Roma
Superficie: 120 m²
N° locali: 4
Piano:

Efficenza energetica

Classe energetica:
Anno di costruzione: 0

Dati inserzione

ID Offrocasa.com: 10896861
Data inserimento: 16/10/2025
Rif. Agenzia: MN276VRG
Rif. Agenzia MN276VRG

Grimaldi Immobiliare

via roma 10 - Grottaferrata (Roma)
069497757
Richiedi Info dal form:
Accetto l'Informativa Privacy


Condividi

Grimaldi Immobiliare

via roma 10 - Grottaferrata (Roma)

Quadrilocale in Vendita a Roma, 179'000€, 120 m²

Chiama
Contatta