Trilocale in Vendita a Busto Arsizio, 125'000€, 110 m²

Locali: 3
Bagni: 1
Piano: Rialzato
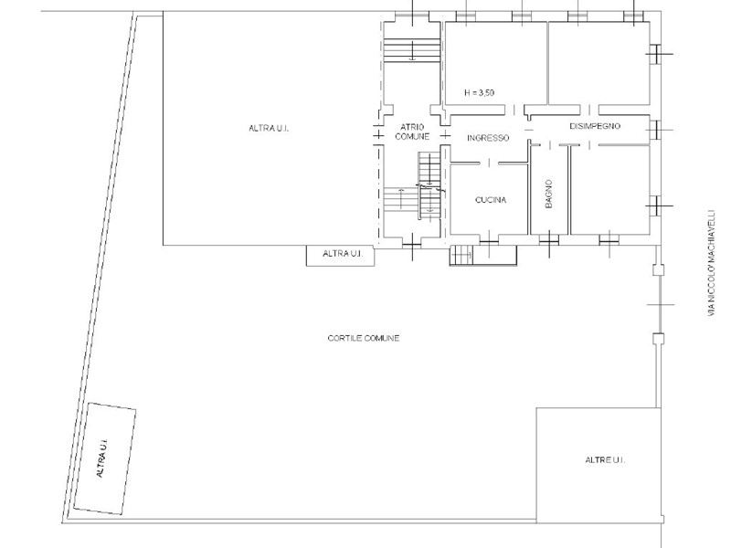
In prossimità del Tribunale di Busto Arsizio, in posizione comoda sia per raggiungere il centro cittadino che l'ingresso autostradale, questo affascinante appartamento rappresenta un'opportunità unica per chi desidera vivere in un ambiente accogliente e ricco di storia. Con una superficie di 110 mq, questa casa offre spazi ben distribuiti e una luminosità che avvolge ogni angolo. L'edificio risale al 1920, un'epoca che si riflette nei dettagli architettonici dello stabile, nonché nelle finiture dell'appartamento, la superficie si sviluppa su un unico livello, al piano rialzato, garantendo praticità e comfort per ogni esigenza abitativa. L'ingresso è sull'ampio disimpegno, sul quale espongono tutti gli ambienti della casa, la zona giorno comprende un ampio soggiorno e una comoda cucina abitabile dotata di balcone. La zona notte è composta da due camere da letto matrimoniali e dal bagno, attualmente dotato di vasca. Completano la proprietà una cantina ed un posto auto interno ad uso. Le condizioni interne dell'appartamento sono buone, di particolare rilevanza la pavimentazione dell'immobile, originale dell'epoca di costruzione, con marmette in cucina e nel disimpegno e parquet a lisca di pesce nel soggiorno e nelle camere. . Con la sua posizione strategica nel comune di Busto Arsizio, questo appartamento rappresenta una soluzione abitativa ideale per chi cerca un connubio tra tradizione e modernità, storia e comfort. Ideale anche per essere destinato ad ufficio. Non lasciarti sfuggire questa occasione unica di vivere in un ambiente unico e suggestivo. Busto Arsizio, Viale Diaz, in prossimità del Tribunale ed in posizione comoda per gli spostamenti verso Gallarate e l'ingresso autostradale, proponiamo in vendita ampio trilocale in elegante stabile d'epoca, esternamente ristrutturato tre anni fa, ideale per gli amanti degli stabili storici. L'appartamento , posto al piano rialzato, misura 110mq e si distingue per gli ampi e luminosi locali, tutti di pianta regolare e con soffitto alto 3.5m. La distribuzione degli spazi prevede l'ingresso sull'ampio disimpegno sul quale espongono tutti i locali: la comoda cucina abitabile, il soggiorno, le due camere da letto ed il bagno con vasca. Completano la proprietà cantina e posto ad uso. L'appartamento conserva la pavimentazione originale dell'epoca, marmette nella zona giorno e parquet a lisca di pesce nelle camere e nel soggiorno. Libero e subito disponibile. IDEALE ANCHE PER ESSERE TRASFORMATO IN UFFICIO

Condizioni economiche

Contratto: Vendita
Prezzo: 125'000€
Arredato: No
Spese condominiali: 100€
Libero: Si

Informazioni principali

Tipologia: Trilocale
Città: Busto Arsizio
Superficie: 110 m²
N° locali: 3
N° bagni: 1
Piano: Rialzato
Posto auto: Si

Efficenza energetica

Classe energetica: 2015-E
Ipe: 195.88 kwm2
Anno di costruzione: 1920
Riscaldamento: autonomo

Dati inserzione

ID Offrocasa.com: 10896840
Data inserimento: 16/10/2025
Rif. Agenzia: gp125fVRG
Rif. Agenzia gp125fVRG

Gabetti

Via XXII Marzo 2 - Busto Arsizio (Varese)
0331.67.04.26
Richiedi Info dal form:
Accetto l'Informativa Privacy


Gabetti

Via XXII Marzo 2 - Busto Arsizio (Varese)

Trilocale in Vendita a Busto Arsizio, 125'000€, 110 m²

Chiama
Contatta