Trilocale in Vendita a Cornaredo, 235'000€, 95 m²

Locali: 3
Bagni: 1
Camere: 2
Piano: 1°
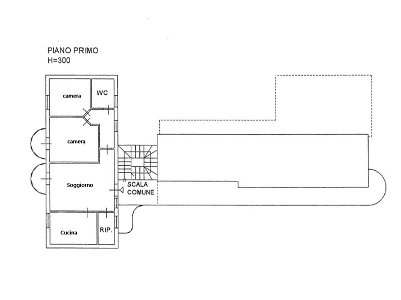
Cornaredo, in piccolo contesto di solo tre unità abitative, proponiamo appartamento di tre locali posto al primo ed ultimo piano senza ascensore. L'immobile è composto da - ingresso, soggiorno, cucina abitabile, due camere, ripostiglio, bagno e tre balconcini. Completa la proprietà la cantina al piano interrato ed un posto auto coperto all'interno dello stabile. Buone le finiture generali della casa con porta blindata, pavimentazione in cerami in tutta la casa, serramenti in legno, doppi vetri, persiane esterne in legno, inferriate su alcune finestre, caldaia nuova a condensazione, cappotto esterno. Rif 565498 Gabetti mette a disposizione un portfolio vastissimo. Gli annunci del gruppo sono visitati con altissima frequenza e sono corredati da servizi specifici pensati ad hoc per ogni evenienza. Se devi vendere o affittare il tuo immobile, il primo passo è una corretta valutazione del suo valore. Scegli Gabetti per una consulenza gratuita.

Condizioni economiche

Contratto: Vendita
Prezzo: 235'000€
Arredato: No
Libero: Si

Informazioni principali

Tipologia: Trilocale
Città: Cornaredo
Superficie: 95 m²
N° locali: 3
N° bagni: 1
N° Camere: 2
Piano:
Posto auto: Si
Cucina: Abitabile

Efficenza energetica

Classe energetica:
Anno di costruzione: 2000
Riscaldamento: autonomo

Caratteristiche

Cantina: Si

Dati inserzione

ID Offrocasa.com: 10896837
Data inserimento: 16/10/2025
Rif. Agenzia: Cod. rif 3263952VRG
Rif. Agenzia Cod. rif 3263952VRG

Gabetti

Piazza Del Popolo 34 - Corbetta (Milano)
02/97486094
Richiedi Info dal form:
Accetto l'Informativa Privacy


Condividi

Gabetti

Piazza Del Popolo 34 - Corbetta (Milano)

Trilocale in Vendita a Cornaredo, 235'000€, 95 m²

Chiama
Contatta