Quadrilocale in Vendita a Finale Ligure, zona Finalborgo, 98'250€, 92 m²

Locali: 4
Camere: 1
Piano: t
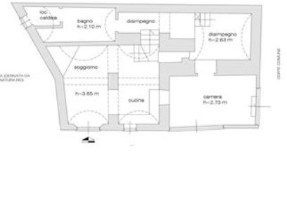
Piena proprietà di appartamento posto al piano terra di un fabbricato che si sviluppa su 2 piani fuori terra, avente una superficie commerciale di 91,90 mq, composto da ingresso su soggiorno con cucina a vista, disimpegno articolato in due ambienti e corridoio, una camera, bagno e locale caldaia. - Il Prezzo visualizzato è la Base d'Asta in quanto l’immobile è oggetto di esecuzione immobiliare venduto tramite Asta Giudiziaria. - L'immobile aggiudicato, viene venduto libero e sgombro da persone cose ed ipoteche nello stato di fatto e di diritto in cui si trova. - Non rappresentiamo il Tribunale, ma lavoriamo nell'esclusivo interesse del potenziale acquirente per garantire un acquisto sicuro. - I consulenti di ASTE ITALIA ti assisteranno in tutte le attività dell'iter giudiziario dalla visita dell'immobile fino alla consegna chiavi. - Contatta il nostro Servizio Clienti , i nostri operatori sono a disposizione per chiarire i molteplici dubbi per partecipare alle ASTE.

Condizioni economiche

Contratto: Vendita
Prezzo: 98'250€
Arredato: No

Informazioni principali

Tipologia: Quadrilocale
Città: Finale Ligure
Zona: Finalborgo
Superficie: 92 m²
N° locali: 4
N° Camere: 1
Piano: t
Cucina: Abitabile

Efficenza energetica

Classe energetica: G
Anno di costruzione: 0
Condizioni stabile: Discreto

Dati inserzione

ID Offrocasa.com: 10895821
Data inserimento: 15/10/2025
Rif. Agenzia: SV117/21L1-1612-25-1515
Rif. Agenzia SV117/21L1-1612-25-1515

ASTE ITALIA

Via Serra 6 Int 7 - Genova (GE)
010.8935240
Richiedi Info dal form:
Accetto l'Informativa Privacy


ASTE ITALIA

Via Serra 6 Int 7 - Genova (GE)

Quadrilocale in Vendita a Finale Ligure, zona Finalborgo, 98'250€, 92 m²

Chiama
Contatta