Villa bifamiliare in Vendita a Buggiano, zona Borgo a Buggiano, 295'000€, 130 m²

Locali: 4
Bagni: 2
Camere: 3
Piano: su più livelli
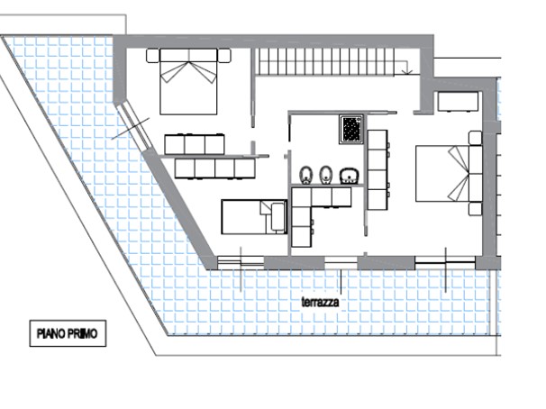
Borgo. Villa in classe A con ampio giardino esclusivo Situata in località Santa Maria, poco fuori dal centro di Borgo a Buggiano ma comunque vicino ai servizi, villa unifamiliare libera su tre lati in corso di costruzione e in classe energetica A+. Il villino si sviluppa su due livelli ed è corredato da un ampio giardino esclusivo di circa 580 mq, perfetto per trascorrere momenti di assoluto relax. La costruzione è stata fatta con una struttura antisismica in cemento armato e struttura verticale portante ecosism, per offrire il massimo comfort abitativo a livello acustico, termico e strutturale. Il tetto è stato realizzato in piano in latero-cemento e con pannelli isolanti; inoltre la casa sarà dotata di riscaldamento a pavimento con pompa di calore, impianto fotovoltaico e predisposizione per aria condizionata. L'abitazione è composta al piano terra da un'ampia zona giorno con soggiorno-pranzo con angolo cottura open space corredata da due ampie porte finestre che affacciano sul giardino circostante. Completano il piano un bagno finestrato con doccia e la zona lavanderia, quest'ultima accessibile dall'esterno, oltre ad un ampio porticato. Salendo al primo piano troviamo la zona notte dove il corridoio ci conduce alle tre camere da letto e al secondo bagno con doccia. Tutte le camere sono dotate di porta finestra per accedere alla terrazza abitabile, dalla quale si può vedere anche il castello di Bellavista. Completano la proprietà due posti auto scoperti. La villa viene venduta nello stato in cui attualmente si trova e si vede nelle foto, in modo che il cliente possa decidere di personalizzarsi la sua futura casa. L'indirizzo riportato sulla mappa è solamente indicativo. Per vedere o avere maggiori informazioni sull'immobile chiamaci al numero 0572/505243 oppure inviaci una mail a agenzia@mctudioimmobiliare.com

Condizioni economiche

Contratto: Vendita
Prezzo: 295'000€

Informazioni principali

Tipologia: Villa bifamiliare
Città: Buggiano
Zona: Borgo a Buggiano
Superficie: 130 m²
N° locali: 4
N° bagni: 2
N° Camere: 3
Piano: su più livelli
Posto auto: 2
Giardino: privato

Efficenza energetica

Classe energetica: In attesa di certificazione
Anno di costruzione: 2024

Dati inserzione

ID Offrocasa.com: 10894055
Data inserimento: 14/10/2025
Rif. Agenzia: 1352694/1427/120772124
Rif. Agenzia 1352694/1427/120772124

MC Immobiliare

Via Via I Maggio,, 267 - Massa e Cozzile (Pistoia)
05721753172
Richiedi Info dal form:
Accetto l'Informativa Privacy


MC Immobiliare

Via Via I Maggio,, 267 - Massa e Cozzile (Pistoia)

Villa bifamiliare in Vendita a Buggiano, zona Borgo a Buggiano, 295'000€, 130 m²

Chiama
Contatta