Terreno industriale in Vendita a Fiumefreddo di Sicilia, 590'000€, 15000 m²

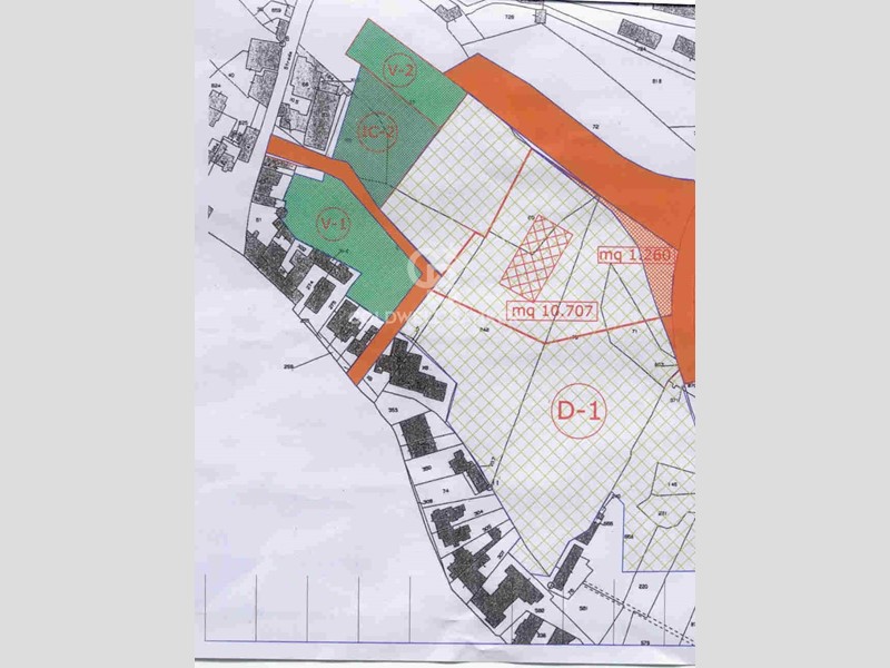
COLDWELL BANKER propone in Vendita a Fiumefreddo di Sicilia Terreno Edificabile, si estende su una superficie totale di 15000 metri quadrati ed è caratterizzato da una topografia pianeggiante, rendendolo ideale per la costruzione di nuove strutture ocommerciali.ad uso commerciale, turistico alberghiero, casa albergo, residence, parco divertimenti, campeggio, impianti sportivi. A Fiumefreddo, a tre km da Marina di Cottone, 5 km da Giardini Naxos e Taormina, ingresso dalla SS 114, dalla A 18 e dalla strada per Marina di Cottone. Immediatamente edificabile lotto minimo 5.000 mq. Simulazione di progetto per la realizzazione di n.2 Capannoni di 1000/1200 mq h. 10 mt. compreso opere di urbanizzazione. La sua posizione strategica lo rende facilmente accessibile dalla principale arteria stradale della zona e dalle città circostanti, offrendo un'ottima opportunità per un progetto di sviluppo immobiliare. Il terreno è situato in una zona tranquilla e ben servita, immersa nella natura e circondata da incantevoli paesaggi di campagna, garantendo un ambiente ideale per una vita all'aria aperta. Inoltre, grazie alla sua vasta superficie, offre ampi spazi per la realizzazione di giardini, aree verdi e parcheggi. Non esitate a contattarci per maggiori informazioni su questa eccellente opportunità di investimento.

Condizioni economiche

Contratto: Vendita
Prezzo: 590'000€
Libero: Si

Informazioni principali

Tipologia: Terreno industriale
Città: Fiumefreddo di Sicilia
Superficie: 15000 m²

Efficenza energetica

Classe energetica:

Dati inserzione

ID Offrocasa.com: 10891871
Data inserimento: 10/10/2025
Rif. Agenzia: CBI178-2734-873
Rif. Agenzia CBI178-2734-873

Coldwell Banker Arteka Group

Viale Cristoforo Colombo 41 - Acireale (Catania)
(+39) 095 7648129
Richiedi Info dal form:
Accetto l'Informativa Privacy


Coldwell Banker Arteka Group

Viale Cristoforo Colombo 41 - Acireale (Catania)

Terreno industriale in Vendita a Fiumefreddo di Sicilia, 590'000€, 15000 m²

Chiama
Contatta