Villa in Vendita a Monteroni d'Arbia, 330'000€, 186 m², con Box

Locali: 7
Bagni: 3
Camere: 3
Piano: piano terra
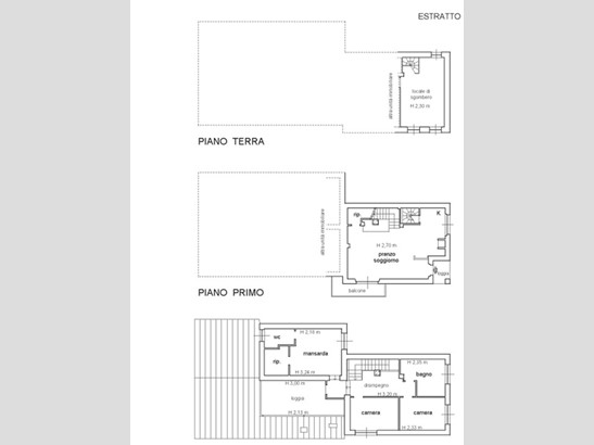
Immagina di varcare il cancello e lasciarti avvolgere dalla quiete del tuo giardino privato, un angolo di verde che introduce alla bellezza e all’eleganza di questa villa unica. Un secondo accesso, con rampa, conduce comodamente al garage piastrellato, a conferma della funzionalità e del comfort che caratterizzano ogni dettaglio di questa residenza. Entrando nella villa, al piano terra, ti accoglie una zona giorno sorprendentemente ampia e luminosa: un ambiente conviviale con angolo cottura, reso caldo e suggestivo dal caminetto in muratura. Un balcone si apre direttamente dalla sala, portando luce naturale e continuità tra interno ed esterno. A completare il piano, un locale accessorio utile e discreto. Un’elegante scala, ampia e ariosa, ti guida al piano superiore, dove la zona notte prende vita: un disimpegno ,due camere da letto ,un bagno in muratura dal carattere deciso, e un’affascinante locale mansarda che si rivela una vera e propria suite. Qui trovi una grande cabina armadio, un bagno privato e un’atmosfera intima e raffinata. Dalla mansarda si accede al magnifico terrazzo: uno spazio ampio, ideale per cene al tramonto o momenti di relax, con una vista incantevole sulle colline toscane e su Monteroni. Scendendo al piano inferiore, la villa regala ancora sorprese: una taverna accogliente, perfetta per riunioni conviviali, dotata di bagno. Da qui si accede direttamente al garage piastrellato, tramite scala interna a chiocciola o attraverso la rampa esterna. Ogni ambiente è arricchito dalle travi a vista in legno, trattate con cura, che donano autenticità e calore tipicamente toscani, fondendo eleganza e tradizione. Questa villa non è solo una casa: è un rifugio di charme, un luogo dove vivere esperienze, emozioni e ricordi.

Condizioni economiche

Contratto: Vendita
Prezzo: 330'000€

Informazioni principali

Tipologia: Villa
Città: Monteroni d'Arbia
Superficie: 186 m²
N° locali: 7
N° bagni: 3
N° Camere: 3
Piano: piano terra
Box: si
Posto auto: 1
Giardino: privato

Efficenza energetica

Classe energetica: E
Ipe: 112,00 kwm2
Anno di costruzione: 1998
Ristrutturato: si

Dati inserzione

ID Offrocasa.com: 10891556
Data inserimento: 10/10/2025
Rif. Agenzia: 1351913/1103/106
Rif. Agenzia 1351913/1103/106

BALDI Immobiliare

Via Via Cecco Angiolieri,, 35 - Siena
057741245
Richiedi Info dal form:
Accetto l'Informativa Privacy


BALDI Immobiliare

Via Via Cecco Angiolieri,, 35 - Siena

Villa in Vendita a Monteroni d'Arbia, 330'000€, 186 m², con Box

Chiama
Contatta