Quadrilocale in Vendita a Thiene, 250'000€, 136 m²

Locali: 4
Piano: 2
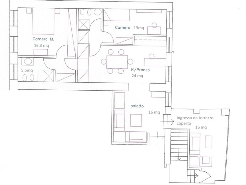
THIENE CENTRO in un esclusivo palazzo d'epoca risalente al XVII secolo, APPARTAMENTO AL PIANO ATTICO con ingresso indipende dal TERRAZZONE e un comodo ascensore al piano. Il tutto a soli ......260.000,00 con garage Appena se ne varca la soglia , ci si ritrova in un' inedita dimensione di antico prestigio e odierno benessere. L'immobile è in un contesto completamente travato a vista con sasso a vista e fregi nobiliari . L'appartamento si trova al primo secondo e dall'ingresso, si può godere di una bellissima vista sul Duomo di Thiene ed apprezzare la bellezza del terrazzo coperto a sud che offre un angolo rilassante o conviviale a seconda del momento. Entrando si percepisce l'energia positiva dei materiali naturali quali legno, pietra e l'amore che nel tempo i proprietari hanno destinato nel costruire e mantenere questa dimora signorile. Guardando la planimetria allegata si apprezza la funzionale suddivisione degli spazi creando un ambiente flessibile e nello stesso tempo di iconica bellezza. Nell'androne del palazzo, con il suo pavimento in cotto a spina di pesce e l'originale soffitto in travi di castagno decorato, c'è la possibilità del posto auto. Il prezzo dell'immobile si riferisce allo stato ultimato con la possibilità di personalizzare le finiture. Alcune foto dell'annuncio sono puramente indicative La nostra agenzia , sita nel cuore di Thiene in Piazza Chilesotti, è a Vostra disposizione con ulteriori proposte ad orari flessibili in base alle Vostre esigenze. Innova Group 0445.367849 ,innovagroup@tiscali.it twitter:@InnovaGroupVi https://www.facebook.com/InnovaGroupAgencyThiene L’agenzia Immobiliare Innovagroup si occupa principalmente di compravendita e affittanza di immobili : appartamenti case ville multiproprietà capannoni uffici negozi I collaboratori di Innovagroup saranno ben lieti di mettere al Vostro servizio la propria pluriennale esperienza in tutte le fasi della compravendita o della locazione del Vostro immobile. Questi i servizi offerti dall'agenzia immobiliare Innovagroup, sita in Piazza Chilesotti a Thiene: - valutazione: l'agente immobiliare di Innovagroup è in grado, grazie alla sua esperienza maturata negli anni sul territorio, di dare al vostro immobile una valutazione REALE in linea con le quotazioni del mercato, sia per quanto riguarda la vendita che per la locazione. - visure catastali e ipotecarie: Innovagroup esegue visure catastali e ipotecarie al fine di acquisire le informazioni necessarie per l'assoluta tutela della sua clientela. - assistenza mutuo: Innovagroup collabora con diversi agenti creditizi appoggiati ad istituti di credito conosciuti in modo da ottenere mutui o finanziamenti idonei alle situazioni personali - variazioni catastali e ape: Innovagroup offre la consulenza di tecnici qualificati per la sistemazione di pratiche urbanistiche e catastali e/o al rilascio di attestati di prestazione energetica (APE) - registrazione contratti: l'agente immobiliare di Innovagroup si occupa in prima persona della registrazione di qualsiasi contratto, di compravendita o locazione, presso gli ufficio preposti. - assistenza fino al rogito: sarà carico dell'agente di Innovagroup procurarsi la necessaria documentazione al fine della definizione del rogito notarile. Il suddetto agente inoltre accompagnerà il cliente fino alla definizione di quest'ultima fase - Innovagroup esegue servizi di gestione di immobiliare sia per immobili in locazione che in vendita - Innovagroup vi assiste e vi consiglia su pianificazioni di operazioni immobiliari con messa a redditto di capitale immobiliare - L'agenzia immobiliare Innovagroup offre anche servizi di amministrazioni condominiali

Condizioni economiche

Contratto: Vendita
Prezzo: 250'000€
Arredato: No

Informazioni principali

Tipologia: Quadrilocale
Città: Thiene
Vicinanze: Centro Storico
Superficie: 136 m²
N° locali: 4
Piano: 2

Efficenza energetica

Classe energetica: VA
Anno di costruzione: 0
Condizioni stabile: Ristrutturato

Dati inserzione

ID Offrocasa.com: 10891285
Data inserimento: 09/10/2025
Rif. Agenzia: 3632
Rif. Agenzia 3632

INNOVA Group

p.zza Chilesotti 8 - Thiene (VI)
0445.367849
Richiedi Info dal form:
Accetto l'Informativa Privacy


INNOVA Group

p.zza Chilesotti 8 - Thiene (VI)

Quadrilocale in Vendita a Thiene, 250'000€, 136 m²

Chiama
Contatta