Bilocale in Vendita a Roma, 450'000€, 54 m²

Locali: 2
Bagni: 1
Camere: 1
Piano: 4°
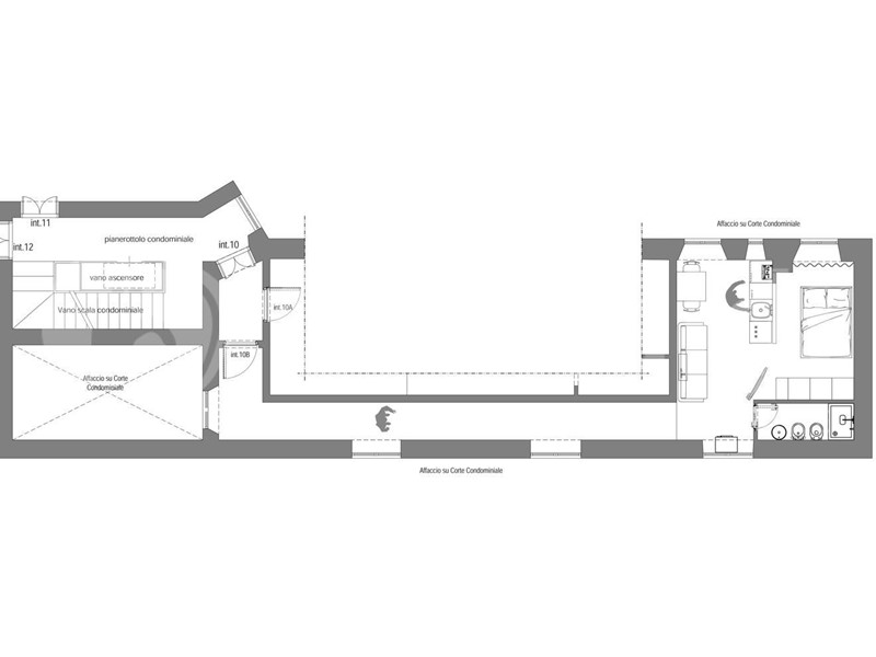
Ancora non ha trovato un bilocale inzona? Probabilmente quanto segue potrà essere di Suo interesse. Soggiorno con angolo cottura e zona notte in vendita in Via Germanico, nel cuore del quartiere Prati, sicuramente la zona più vivace di Roma. Questo quartiere fu costituito ufficialmente nell'agosto del 1921. Una delle sue particolarità è che l'impianto urbanistico stradale fu progettato in modo tale che nessuna delle nuove vie avesse come sfondo la cupola della Basilica di San Pietro, poiché i rapporti tra il nuovo Stato italiano e la Santa Sede a quei tempi erano tesi. Per questo motivo, i nomi delle vie del nuovo rione furono scelti tra personaggi storici della Roma repubblicana e imperiale. Ad uno di questi personaggi fa riferimento la nota Via Germanico, che collega Via Leone IV con Piazza dei Quiriti. All'altezza di Via Fabio Massimo, in uno stabile storico dotato di ascensore, si trova una proprietà che l'agenzia immobiliare Grimaldi Roma Prati ha il piacere di presentarLe. L'immobile è sito al quarto piano e si sviluppa su una superficie catastale di circa 54 mq. Appena si entra un lungo corridoio, che come una galleria, collega l'ingresso dell' appartamento alla zona living. Peculiarità è la presenza di sette finestre che donano al appartamento un importante riscontro di luce e di aria. Alla fine di questo lungo corridoio troviamo quindi un soggiorno con angolo cottura con tre finestre, una zona notte dotata anche essa di finestra e un bagno cieco. L'immobile verrà consegnato finemente ristrutturato. La proprietà è adatta anche come struttura ricettiva. Il prezzo richiesto è di euro 450.000 *Le presenti informazioni, planimetrie, immagini,video e descrizione immobile, sono meramente indicative e non costituiscono elementi contrattuali e sono da approfondire in sede di visita.

Condizioni economiche

Contratto: Vendita
Prezzo: 450'000€
Arredato: No

Informazioni principali

Tipologia: Bilocale
Città: Roma
Superficie: 54 m²
N° locali: 2
N° bagni: 1
N° Camere: 1
Piano:
Cucina: Abitabile

Efficenza energetica

Classe energetica:
Ipe: 0.00 kwm2
Anno di costruzione: 0

Dati inserzione

ID Offrocasa.com: 10889695
Data inserimento: 08/10/2025
Rif. Agenzia: Cod. rif 3265544VRG
Rif. Agenzia Cod. rif 3265544VRG

Grimaldi Immobiliare

Via Fabio Massimo, 66 - Roma
06/3202951
Richiedi Info dal form:
Accetto l'Informativa Privacy


Condividi

Grimaldi Immobiliare

Via Fabio Massimo, 66 - Roma

Bilocale in Vendita a Roma, 450'000€, 54 m²

Chiama
Contatta