Casa Indipendente in Vendita a Orio Canavese, 50'000€, 140 m²
        
    
        
    
        
    
    
        Casa Indipendente ad uso Abitativo situata nel comune di Orio Canavese (TO)paese collinare  immerso nel verde. Con una superficie di 140 mq, questa proprietà offre un'atmosfera accogliente e tranquilla, ideale per chi cerca un rifugio lontano dal caos cittadino.
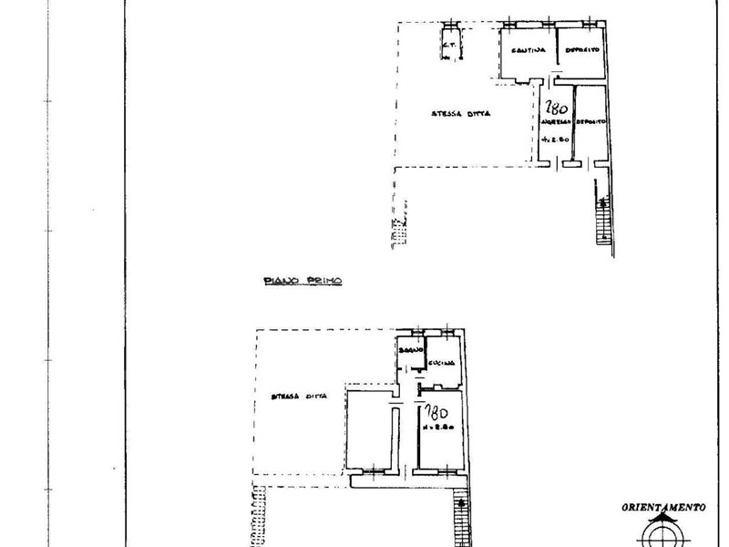
L' immobile è subito abitabile e si compone di un luminoso living con angolo cottura, due camere da letto spaziose e un bagno; inoltre, al piano terra sono presenti locali accessori che offrono ulteriori possibilità di utilizzo. Il cortile antistante offre uno spazio all'aperto perfetto per momenti di relax e intrattenimento.
Adiacente di pari metratura, è acquistabile  ad euro ventimila, una seconda porzione  parzialmente da ristrutturare oltre ad un terreno confinante  che offre ampie opportunità per chi ama il giardinaggio o desidera creare uno spazio verde personalizzato.
Questa Casa Indipendente semicentrale è l'opportunità perfetta per chi cerca una residenza confortevole  in un contesto naturale e tranquillo e con l' acquisto e la  ristrutturazione della porzione adiacente può diventare una bifamiliare con spazi adeguati per  entrambe le famiglie. Non lasciarti sfuggire questa occasione unica di vivere immerso nella bellezza della campagna piemontese a pochi passi dai servizi essenziali. Contattaci per organizzare una visita e scoprire tutti i dettagli di questa meravigliosa proprietà.
	
    
    
    
        
        
            Condizioni economiche
            
                Contratto: Vendita
            
            
                Prezzo: 50'000€
            
            
         
        
            Informazioni principali
            
                Tipologia: Casa Indipendente
            
            
                Città: Orio Canavese
            
            
                
                    Superficie: 140 m²
                
            
                
                    N° locali: 5
                
            
                
                    N° bagni: 1
                
            
                
                    N° Camere: 2
                
            
                
                    Cucina: Abitabile
                
            
         
        
            Efficenza energetica
            
                Classe energetica: 2015-C
            
            
                
                    Ipe: 148.41 kwm2
                
            
                
                    Anno di costruzione: 0
                
            
                
                    Riscaldamento: autonomo 
                
            
		 
        
                
                    Caratteristiche
                    
                        
                            Cantina: Si
                        
                    
                 
            
            
                Dati inserzione
                
                    ID Offrocasa.com: 10888694
                
                
                
                    Data inserimento: 07/10/2025
                
                
                    
                        Rif. Agenzia: Cod. rif 3251373VRG
                    
                
             
        
	 
    
    
        
Casa Indipendente in Vendita a Orio Canavese, 50'000€, 140 m²