Villetta a schiera in Vendita a Empoli, 450'000€, 180 m², con Box

Locali: 5
Bagni: 3
Camere: 3
Piano: su più livelli
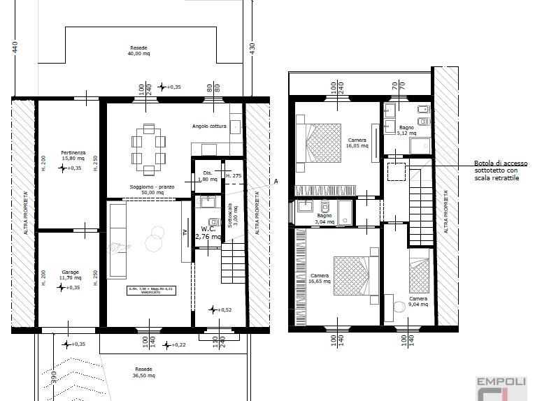
CAPOLUOGO - Empoli Rif. F/0747 - CONSEGNA DICEMBRE 2025/FEBBRAIO 2026 COMPLETAMENTE RISTRUTTURATA. MODERNA ED ELEGANTE NUOVA VILLETTA LIBERA PRATICAMENTE SU TRE LATI PER TOTALI MQ 180 LORDI, DEI QUALI 150 DESTINATI AD ABITAZIONE E 30 AD ACCESSORI. LA VILLETTA E' DISPOSTA SU DUE LIVELLI COLLEGATI FRA LORO DA BELLA SCALA INTERNA ED HA INOLTRE UN GIARDINO DI TOTALI MQ 75. GLI ACCESSORI SONO UN GARAGE ED UN LOCALE PLURIUSO DI PROPRIETA'. Una residenza comoda dotata di comfort straordinari, primo fra tutti un pacchetto tecnologico di massimo livello comprendente: - Riscaldamento a pannelli radianti - Infissi di ultima generazione per un isolamento acustico e termico - VMC (ventilazione meccanica controllata) per un'aria sempre pulita e sana. - Cappotto termico esterno - Pannelli fotovoltaici - predisposizione aria condizionata - predisposizione allarme. L'unità immobiliare si trova pochi minuti dal centro commerciale e dal centro storico di Empoli, dalla sua Stazione Ferroviaria e ad 1 km dall'uscita della Tangenziale per Firenze e Pisa (FI-PI-LI), in una zona in cui i servizi primari sono presenti ovunque. L'ingresso all'unità immobiliare avviene da: giardino privato, passo pedonale e carrabile e portoncino. Al piano terra dell'immobile, l'ingresso, l'ampio soggiorno con a seguire aperto il vano pranzo e la cucina completamente defilata (entrambi questi due vani accedono ad un giardino privato e riservato posto sul retro). totali mq zona giorno 50; il piano terra si conclude con un disimpegno un ripostiglio ed un bagno per ospiti. La scala interna conduce al piano primo. questo piano è così composto: disimpegno due camere matrimoniali (una della quali con bagno dedicato) ed una camera singola. Unità immobiliare unica a misura d'uomo sia internamente che esternamente. Per tutti gli ambienti ampia scelta di materiali di capitolato ed extra capitolato di assoluta qualità. Pacchetto tecnologico mirato al massimo comfort e risparmio energetico, infatti l'immobile si contraddistingue per la sua classe energetica che permetterà di raggiungere una classificazione energetica di livello A/A2. Interessante anche per la sua ubicazione che permette un agevole raggiungimento dei servizi di prima necessità, quali negozi, infrastrutture, trasporti pubblici. LE IMMAGINI DEGLI INTERNI E DEGLI ESTERNI RIPORTATE IN ANNUNCIO SONO INSERITE A SOLO SCOPO ILLUSTRATIVO, MA INTERVENENDO TEMPESTIVAMENTE NELLA PRENOTAZIONE, COLORI E FINITURE RIMANGONO PERSONALIZZABILI DALL'ACQUIRENTE. Classe energetica in elaborazione. Ipotesi alla fine dei lavori: A/A/2. EURO 450.000,00 TRATTABILI PER SERIAMENTE E CONCRETAMETE INTERESSATI.

Condizioni economiche

Contratto: Vendita
Prezzo: 450'000€
Prezzo trattabile: si

Informazioni principali

Tipologia: Villetta a schiera
Città: Empoli
Superficie: 180 m²
N° locali: 5
N° bagni: 3
N° Camere: 3
Piano: su più livelli
Box: si
Posto auto: 1
Giardino: privato

Efficenza energetica

Classe energetica: A1
Ipe: 20,00 kwm2
Anno di costruzione: 2025

Caratteristiche

Cantina: si
Videocitofono: si

Dati inserzione

ID Offrocasa.com: 10888144
Data inserimento: 07/10/2025
Rif. Agenzia: 1350958/144/F/0747
Rif. Agenzia 1350958/144/F/0747

EMPOLI CLUB IMMOBILIARE

Via Via Roma,, 77 - Empoli (Firenze)
0571527150
Richiedi Info dal form:
Accetto l'Informativa Privacy


EMPOLI CLUB IMMOBILIARE

Via Via Roma,, 77 - Empoli (Firenze)

Villetta a schiera in Vendita a Empoli, 450'000€, 180 m², con Box

Chiama
Contatta