Casa Indipendente in Vendita a Ittiri, 59'000€, 168 m²

Locali: 7
Bagni: 2
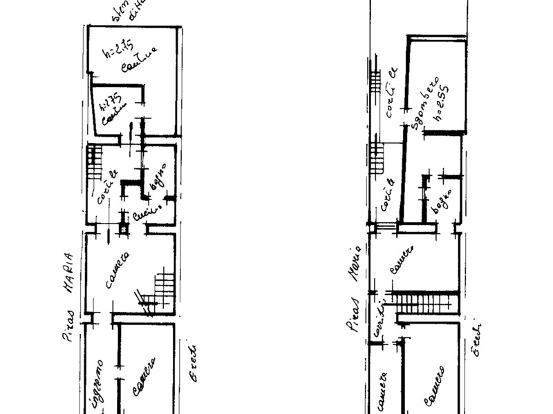
Nel cuore del caratteristico centro storico di Ittiri, in posizione comoda e ben servita, proponiamo in vendita una casa indipendente disposta su due livelli, situata al civico 188 di Corso Vittorio Emanuele, una delle vie principali del paese. L'immobile si sviluppa su una superficie funzionale e ben distribuita, con ambienti luminosi e spazi esterni privati che conferiscono un valore aggiunto alla proprietà. Al piano terra si accede tramite un ingresso su andito di disimpegno, da cui si dirama la distribuzione interna. Sulla destra troviamo una prima camera finestrata, ideale come studio, salotto o camera per ospiti. Proseguendo si apre la zona soggiorno, collegata in maniera fluida alla cucina abitabile e al bagno padronale. Il primo piano ospita la zona notte, composta da una camera matrimoniale con bagno riservato, una seconda camera matrimoniale e una stireria, utile anche come cabina armadio o studio privato. A completare la proprietà, un giardino interno riservato, ideale per momenti di relax o per la creazione di uno spazio verde personalizzato. Nel giardino sono inoltre presenti due vani adibiti a ricovero attrezzi, che offrono ulteriore praticità e spazio di stoccaggio. La casa, pur necessitando di interventi di ammodernamento degli impianti e alcuni lavori murari, rappresenta una soluzione ideale per chi cerca una residenza indipendente da personalizzare secondo i propri gusti, in un contesto urbano vivace ma a misura d'uomo. Ittiri è un centro collinare ricco di storia e tradizione, ben collegato ai principali centri del nord Sardegna e apprezzato per la qualità della vita, i servizi, e la vivacità culturale che lo caratterizza durante tutto l'anno. Ottima opportunità per famiglie, giovani coppie o come investimento a lungo termine.

Condizioni economiche

Contratto: Vendita
Prezzo: 59'000€

Informazioni principali

Tipologia: Casa Indipendente
Città: Ittiri
Superficie: 168 m²
N° locali: 7
N° bagni: 2

Efficenza energetica

Classe energetica:
Anno di costruzione: 0

Dati inserzione

ID Offrocasa.com: 10887737
Data inserimento: 05/10/2025
Rif. Agenzia: Cod. rif 3264794VRG
Rif. Agenzia Cod. rif 3264794VRG

Gabetti

Corso Trinità 127 - Sassari
079/6141075 - 334/59
Richiedi Info dal form:
Accetto l'Informativa Privacy


Condividi

Gabetti

Corso Trinità 127 - Sassari

Casa Indipendente in Vendita a Ittiri, 59'000€, 168 m²

Chiama
Contatta