Ufficio in Vendita a Milano, 3'600'000€, 920 m²

Locali: 10
Bagni: 10
Piano: Multipiano
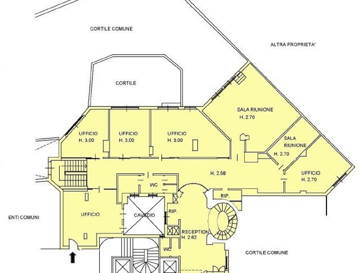
Il piano rialzato è composto da doppio ingresso, ampia sala d'attesa, due grandi uffici open-space, quattro uffici, una sala riunioni, un locale rack e quattro bagni. Il piano seminterrato, collegato internamente da due bellissimi vani scala, è composto da un unico grande open-space che si sviluppa intorno all'ampio cavedio condominiale dotato di grandi finestre che rendono l'ambiente molto luminoso.\nAmpio archivio, area ristoro, locale rack e sei bagni. Internamente in ottime condizioni. Riscaldamento centralizzato, aria condizionata canalizzata oltre pompa di calore\n(caldo/freddo) autonoma. Completa la proprietà un box.\nLo stabile dispone di servizio di portineria intera giornata. Location strategica per società che operano con importanti clienti esteri e che ricercano una sede di alta rappresentanza. Ottima zona, ben servita dai mezzi (MM1 Buonarroti) a pochi passi da City Life e dal quartiere Pagano.A breve distanza dall'autostrada e dalle tangenziali. \nLa descrizione in tutto il suo contesto ha valore puramente indicativo e non costituisce elemento contrattuale.\nContattaci: siamo la prima e vera agenzia and quot;Immobili Di Pregio Srl and quot;. Oltre trentacinque anni di esperienza. Per ulteriori informazioni non esitare a contattarci al numero 028900772-773. Whatsapp: 3349858315. www.immobilidipregio.com\n

Condizioni economiche

Contratto: Vendita
Prezzo: 3'600'000€

Informazioni principali

Tipologia: Ufficio
Città: Milano
Superficie: 920 m²
N° locali: 10
N° bagni: 10
Piano: Multipiano
Posto auto: Garage

Efficenza energetica

Classe energetica: G
Ristrutturato: Ottime Condizioni
Riscaldamento: Centralizzato

Dati inserzione

ID Offrocasa.com: 10886421
Data inserimento: 04/10/2025
Rif. Agenzia: MAU-21
Rif. Agenzia MAU-21

Immobili di Pregio S.r.l.

Foro Buonaparte, 67 - Milano
+39028900772
Richiedi Info dal form:
Accetto l'Informativa Privacy


Immobili di Pregio S.r.l.

Foro Buonaparte, 67 - Milano

Ufficio in Vendita a Milano, 3'600'000€, 920 m²

Chiama
Contatta