Appartamento in Vendita a Sant'Olcese, zona Manesseno, 78'000€, 94 m²

Locali: 6
Camere: 2
Piano: 1
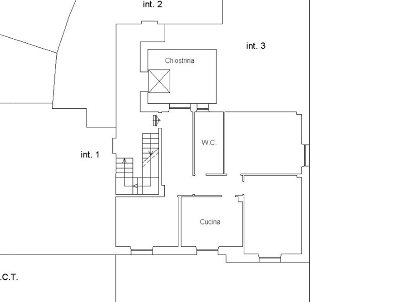
100% 1 DIRITTO DI PROPRIETA’ APPARTAMENTO di vani catastali 5,5, posto al piano 1°, interno 4 del civico 201 di Via G. Poirè in Loc. Manesseno nel Comune di Sant’Olcese (GE). - Il Prezzo visualizzato è la Base d'Asta in quanto l’immobile è oggetto di esecuzione immobiliare venduto tramite Asta Giudiziaria. - L'immobile aggiudicato, viene venduto libero e sgombro da persone cose ed ipoteche nello stato di fatto e di diritto in cui si trova. - Non rappresentiamo il Tribunale, ma lavoriamo nell'esclusivo interesse del potenziale acquirente per garantire un acquisto sicuro. - I consulenti di ASTE ITALIA ti assisteranno in tutte le attività dell'iter giudiziario dalla visita dell'immobile fino alla consegna chiavi. - Contatta il nostro Servizio Clienti , i nostri operatori sono a disposizione per chiarire i molteplici dubbi per partecipare alle ASTE.

Condizioni economiche

Contratto: Vendita
Prezzo: 78'000€
Arredato: No

Informazioni principali

Tipologia: Appartamento
Città: Sant'Olcese
Zona: Manesseno
Superficie: 94 m²
N° locali: 6
N° Camere: 2
Piano: 1
Cucina: Abitabile

Efficenza energetica

Classe energetica: G
Anno di costruzione: 0
Condizioni stabile: Discreto

Caratteristiche

Ascensore: Si

Dati inserzione

ID Offrocasa.com: 10886264
Data inserimento: 03/10/2025
Rif. Agenzia: GE598/14L4-1211-25-1530
Rif. Agenzia GE598/14L4-1211-25-1530

Domy Online S.r.l.

Via San Lorenzo 5/41 - Genova
010.8935187
Richiedi Info dal form:
Accetto l'Informativa Privacy


Domy Online S.r.l.

Via San Lorenzo 5/41 - Genova

Appartamento in Vendita a Sant'Olcese, zona Manesseno, 78'000€, 94 m²

Chiama
Contatta